Vuokrataan toimistotilat - Helsinki
Eliel Saarisen tie 2, 00400 Helsinki #10850898
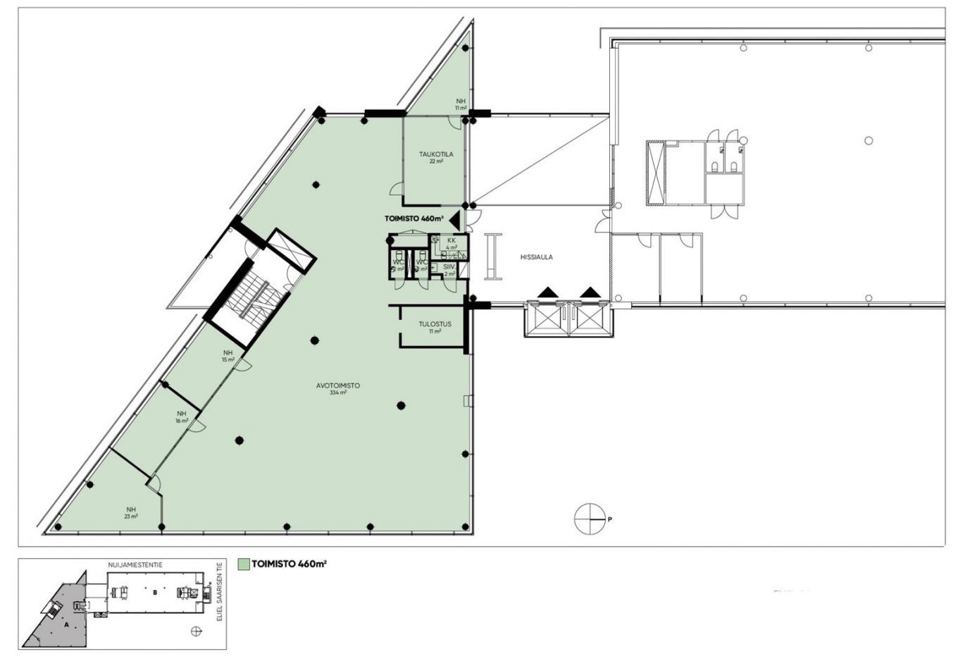
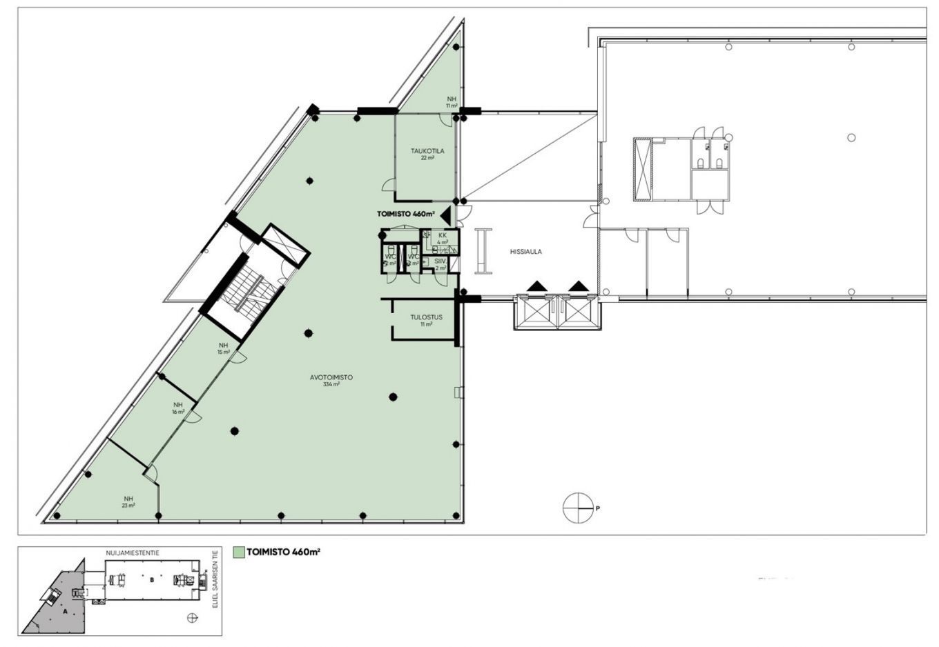
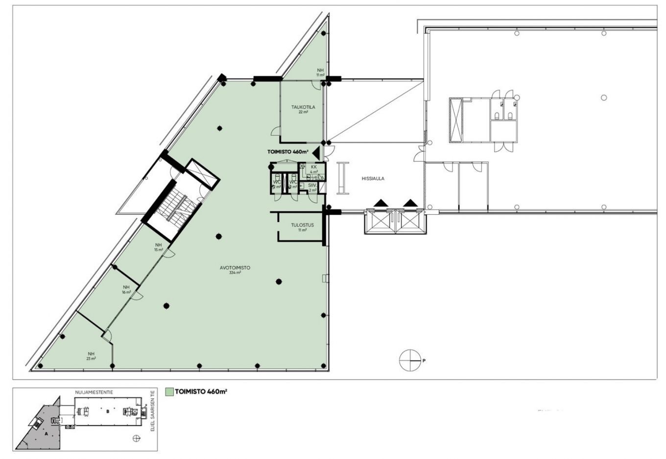
Valoisa toimitila näkyvällä paikalla. X Haaga on moderni toimistotalo Pohjois-Haagassa, Hämeenlinnanväylän varrella ja Keskuspuiston kainalossa. Vapaana kiinteistön 3. kerroksessa valoisa toimitila, joka on muokattavissa tulevan vuokralaisen tarpeisiin sopivaksi.
X Haaga on moderni toimistotalo Pohjois-Haagassa, Hämeenlinnanväylän varrella ja Keskuspuiston kainalossa. Jäähdytetty ilmastointi ja nykyaikaiset tietoliikennevalmiudet. Rakennuksessa on laadukas lounasravintola, aulapalvelu, vuokrattavia neuvottelutiloja, auditorio ja saunaosasto ja kuntosali vuokralaisten käyttöön.
Kiinteistö on saavuttanut BREEAM In-Use (BRE Environmental Assessment Method) -ympäristösertifikaatin. BREEAM on johtava ja yksi laajimmin käytetyistä rakennusten ympäristönarviointijärjestelmistä. Järjestelmän tavoitteena on rakennuksen käytön aikaisten ympäristövaikutusten minimointi ja rakennuksen käytön tehokkuuden maksimointi.
