Vuokrataan toimistotilat - Helsinki
Fredrikinkatu 48, 00100 Helsinki #10850893
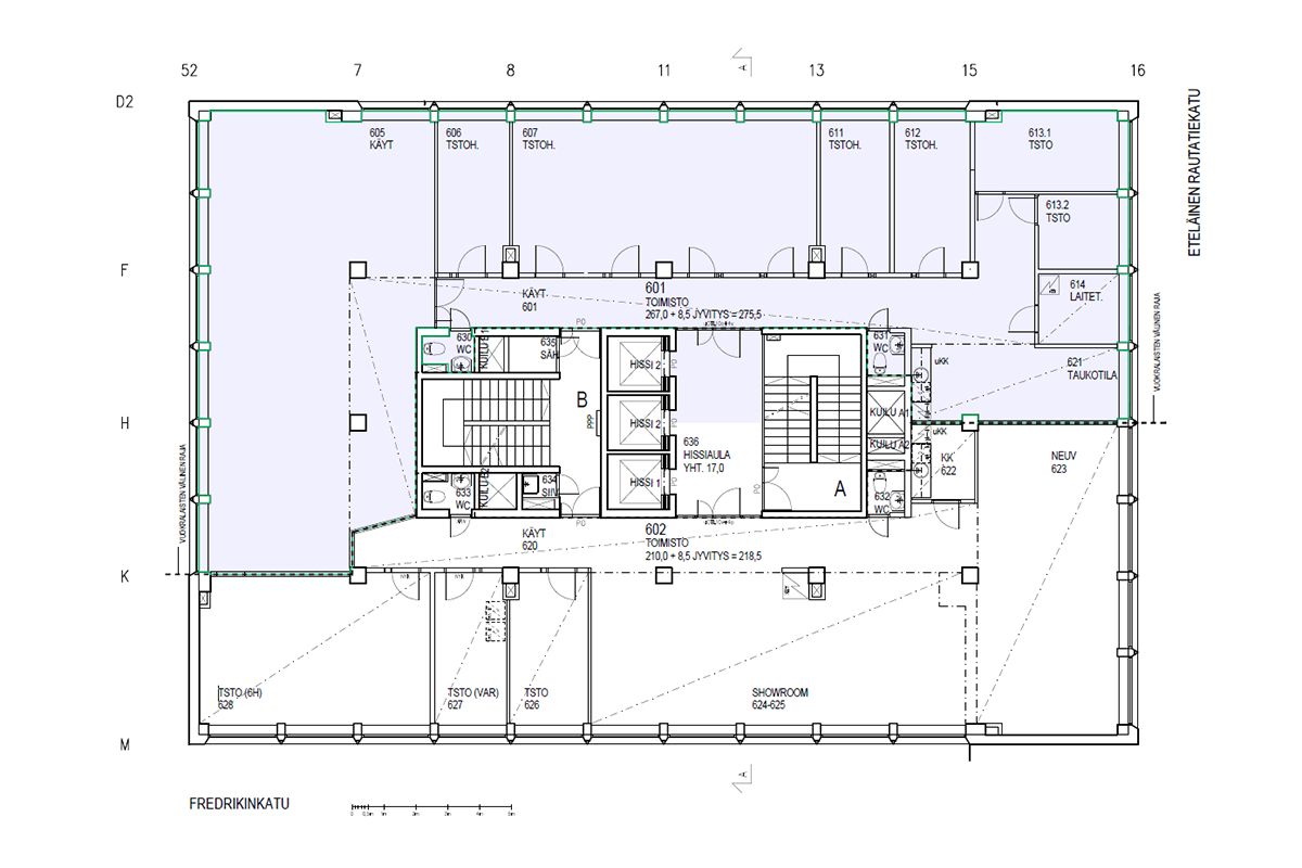
Toimistotila isommallekin yritykselle, 6. kerroksessa Kampin sydämessä. Huoneita ja avotilaa. Autopaikkoja vuokrattavana kellarissa. Helsingin keskustan palvelut ja loistavat liikenneyhteydet aivan kiinteistön ympärillä.
Vuonna 1962 rakennettu Autotalo. Hyvät palvelut, mm. Kampin kauppakeskuksen kauppa- ja ravintolapalvelut vieressä.
Toimistokerroksista on hissiyhteys autohalliin. Pyöräilijöille suihkut ja pyöräparkit. Kiinteistössä on jäähdytys puhallinkonvektoreilla.
Osoite
Fredrikinkatu 48, 00100 Helsinki
Tilatyyppi
Toimistotilaa
275 m2
Kulkuyhteydet
Erinomaiset liikenneyhteydet. Metro- ja linja-autoaseman välittömässä läheisyydessä. Junalle n.5min kävelymatka. Raitiovaunuyhteydet Arkadiankadulta tai Mannerheimintieltä. Pysäköinti Autotalossa tai Europarkin P-Kampissa.
Vapautuu
Kysy
Rakennusvuosi
1962
Ota yhteyttä
Pyydä lisätietoa
