Vuokrataan liiketilat - Helsinki
Atlantinkatu 4, 00220 Helsinki #10850888
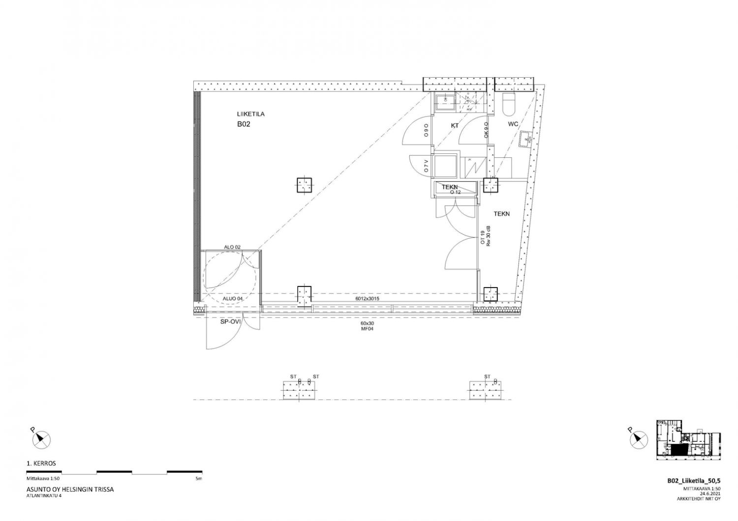
Uuden asuinkiinteistön kivijalasta vuokrattavissa 50,5 m2 liiketila. Loistavalla sijainnilla Jätkäsaaren nopeasti kehittyvällä alueella. Tila ei sovellu ravintolakäyttöön.
Liiketilojen vuokraus ja tiedustelut: C&W Retail Services, puh. 010 836 8418, retail.fi@cushwake.com.
Osoite
Atlantinkatu 4, 00220 Helsinki
Tilatyyppi
Liiketilaa
50 m2
Vapautuu
Kysy
Liitetiedostot
Ota yhteyttä
Pyydä lisätietoa
