Vuokrataan liiketilat - Helsinki
Fredrikinkatu 48, 00100 Helsinki #10850887
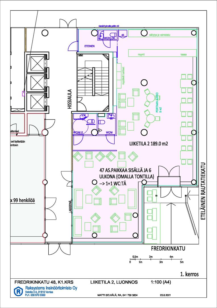
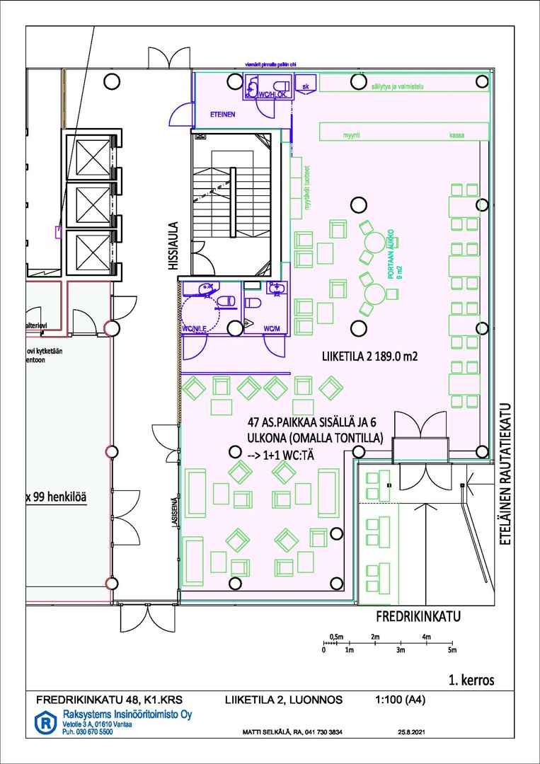
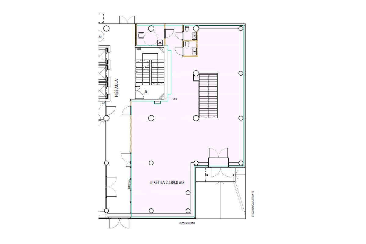
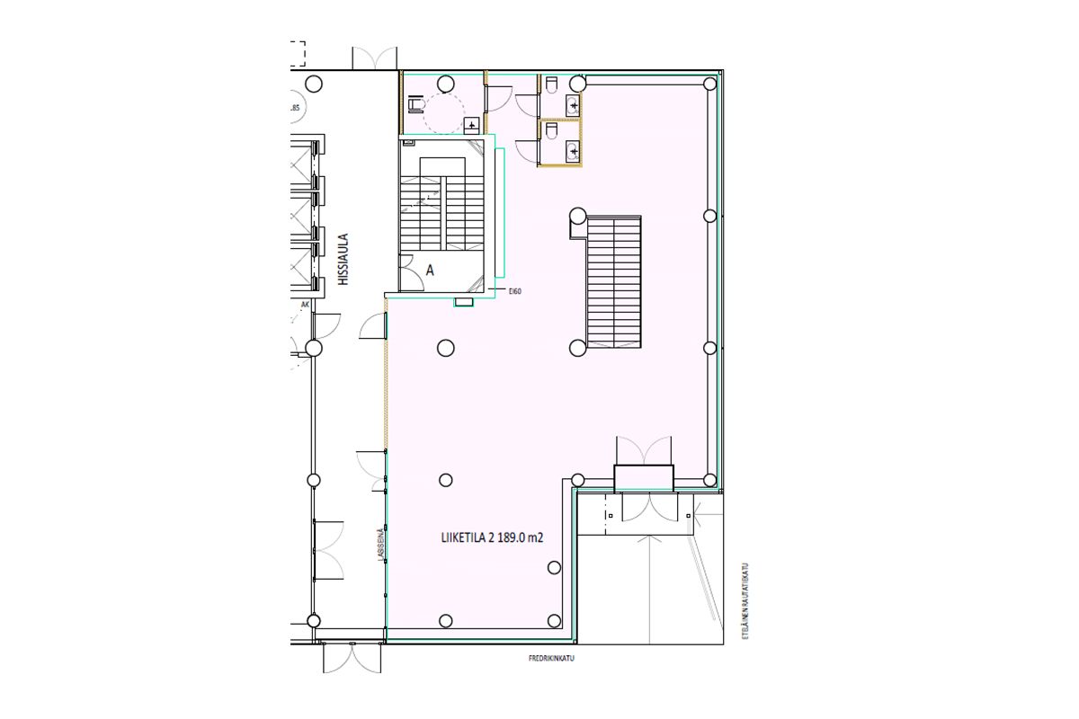
Vuokrataan Fredrikinkatu 48 keskeisellä sijainnilla oleva katutason liiketila. Tila soveltuu esimerkiksi myymäläksi tai asiakaspalvelupisteeksi.
Liiketilojen vuokraus ja tiedustelut: C&W Retail Services, puh. 010 836 8418, retail.fi@cushwake.com.
Vuonna 1962 rakennettu Autotalo. Hyvät palvelut, mm. Kampin kauppakeskuksen kauppa- ja ravintolapalvelut vieressä.
Toimistokerroksista on hissiyhteys autohalliin. Pyöräilijöille suihkut ja pyöräparkit. Kiinteistössä on jäähdytys puhallinkonvektoreilla.
Osoite
Fredrikinkatu 48, 00100 Helsinki
Tilatyyppi
Liiketilaa
189 m2
Kulkuyhteydet
Erinomaiset liikenneyhteydet. Metro- ja linja-autoaseman välittömässä läheisyydessä. Junalle n.5min kävelymatka. Raitiovaunuyhteydet Arkadiankadulta tai Mannerheimintieltä. Pysäköinti Autotalossa tai Europarkin P-Kampissa.
Vapautuu
Kysy
Rakennusvuosi
1962
Liitetiedostot
Ota yhteyttä
Pyydä lisätietoa
