Vuokrataan toimistotilat - Espoo
Lars Sonckin kaari 10 NOVA, 02600 Espoo #10850862
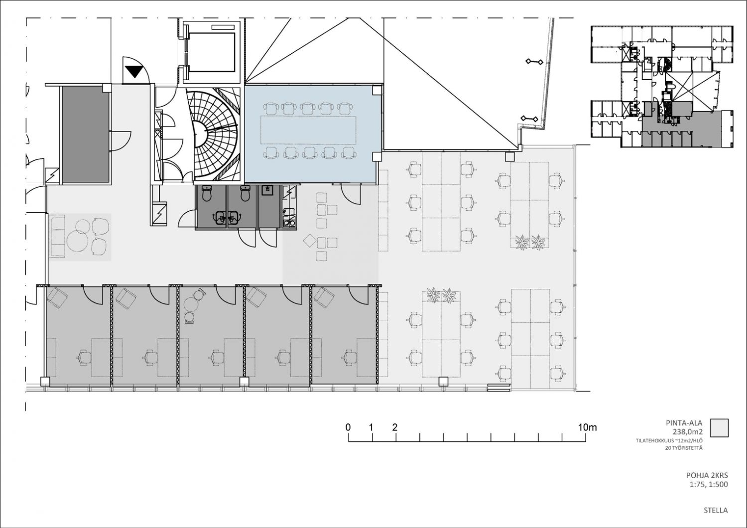
Hiljattain remontoitu, valoisa siisti toimistotila Stella Business Parkin NOVA -talon 2. kerroksessa. Sisäänmuuttokunnossa. Tilassa on viisi huonetta ja avotilaa.
Stella Business Park NOVA. Stella sijaitsee Pohjois-Euroopan suurimmassa teknologiakeskittymässä. Nova on ensimmäinen talo Lars Sonckin kaarelta lähestyttäessä.
Stellan vuokralaisena käytössäsi ovat Business Parkin laadukkaat ja monipuoliset palvelut, kuten: Nopeat tietoliikenneyhteydet, vastaanottopalvelut ja puhelinvaihteen hoito, kuriiri- ja lähettipalvelut, kopiointipalvelut, henkilöstö- ja rekrytointipalvelut, korkeatasoiset ravintolat, parturi-kampaamo, matkatoimisto, autopesupalvelu, kuntosali ja saunaosasto. Yli 100 pysäköintipaikkaa vieraille ja 2 parkkitaloa yritysten henkilöstölle.
