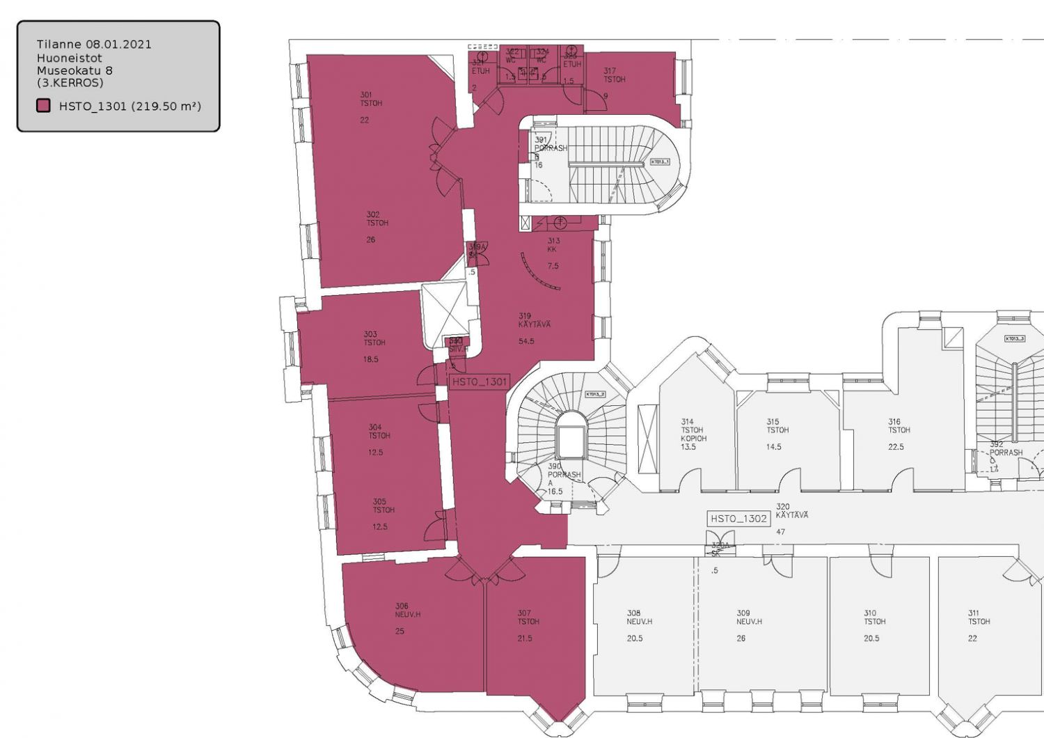
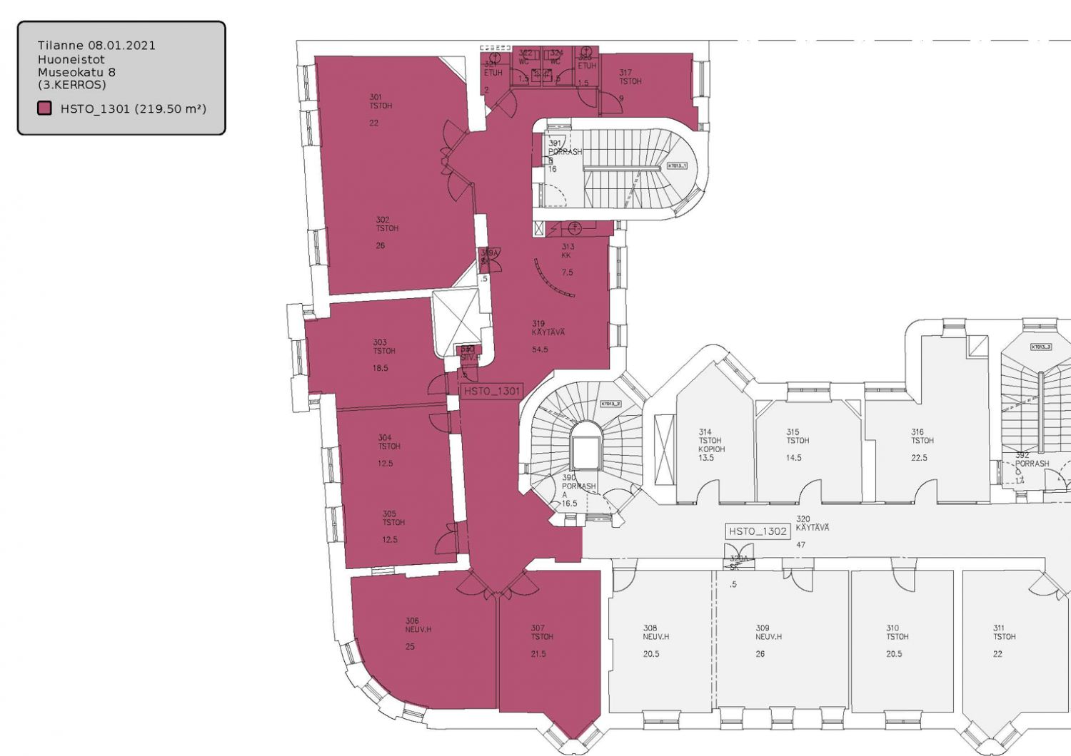
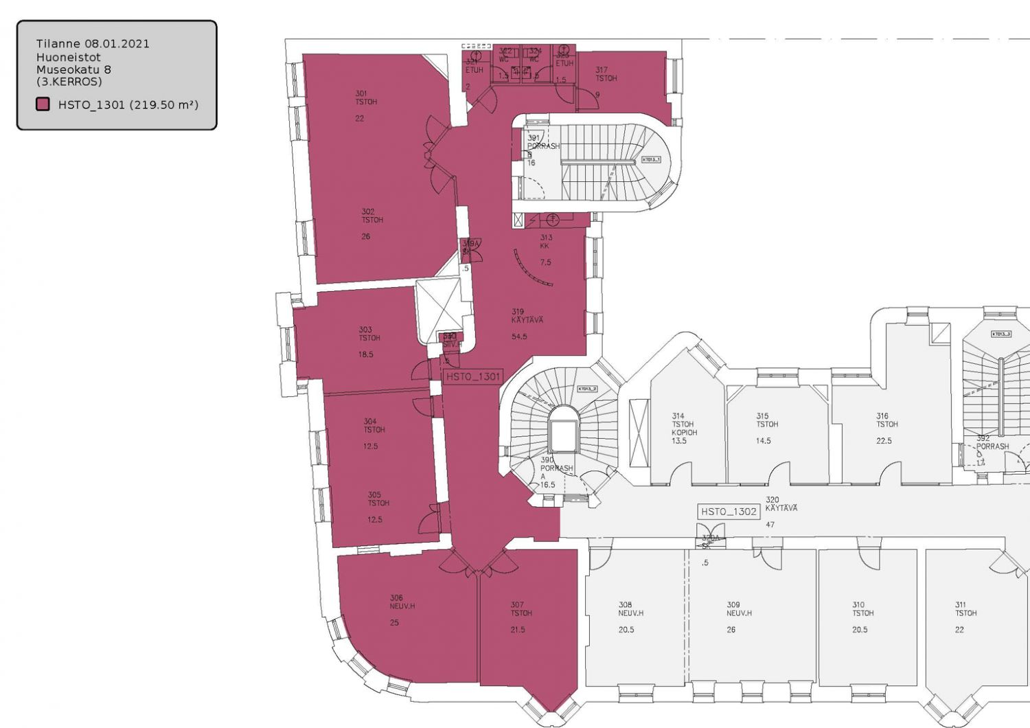
Vuokrataan toimistotilat - Helsinki
Museokatu 8, 00100 Helsinki #10850847
Vuokrattavana viihtyisä 3. kerroksen huonetoimistotila arvokiinteistössä Eduskuntatalon vieressä. Huoneet muokattavissa suuremmiksi avotiloiksi. Tilassa on korkeat huoneet, jotka luovat avaruutta. Erinomainen sijainti Helsingin keskustassa.
Kauniisti saneerattu arvokiinteistö Etu-Töölössä, Mannerheimintien tuntumassa, näköetäisyydellä rautatieasemasta. Rakennus on liitetty kaukolämpöverkkoon ja toimistohuoneistot on varustettu ilmanjäähdytyksellä. Talon toimitiloissa on korkeat huoneet, joten huoneet ovat avaria ja valoisia. Toimistotilojen lisäksi kiinteistön kivijalassa on muutama liiketila. Rakennuksessa on hissi. Pysäköinti Parlamentin Paikoituksessa tai kadunvarressa. Kiinteistön sisäpihalla muutama autopaikka.
