Vuokrataan toimistotilat - Helsinki
Rikhardinkatu 1, 00130 Helsinki #10850846
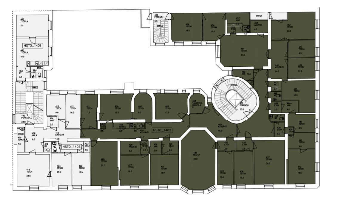
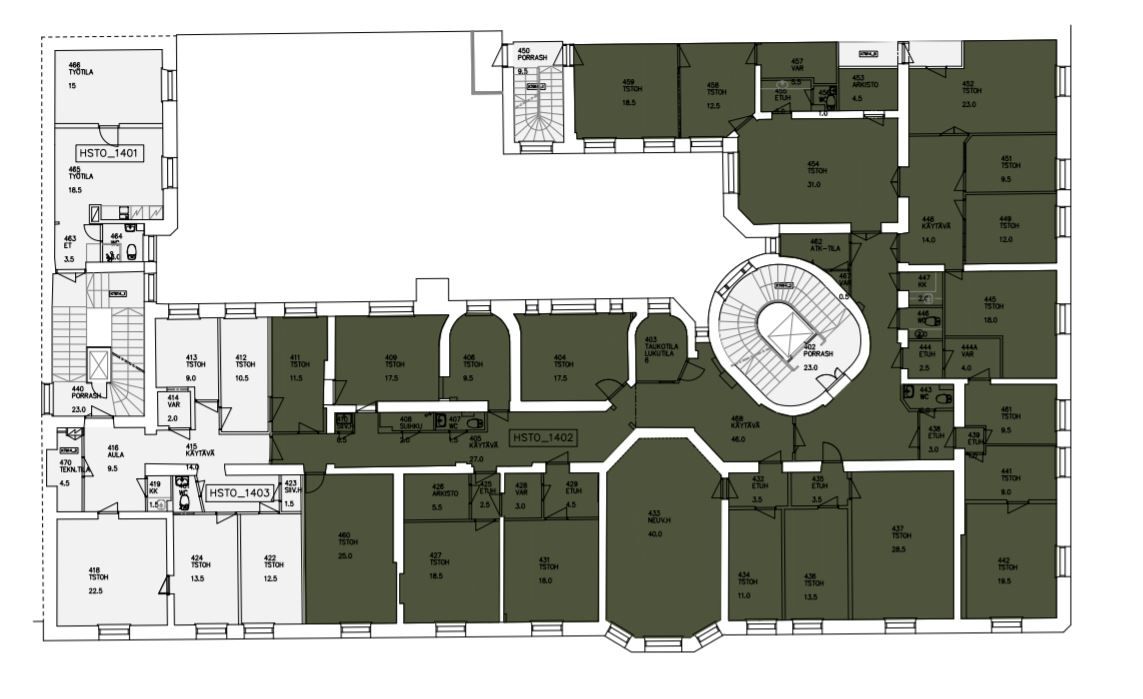
Esplanadin puiston kupeessa vuokrattavissa neljännen kerroksen tilava 551 m2 huonetoimisto. Tila remontoidaan vuokralaisen tarpeen mukaan, joko huonetoimisto- tai monitoimitilaksi. Tilassa on suihku- ja wc-tilat. Kohde sijaitsee Helsingin ydinkeskustassa, noin viiden minuutin kävelymatkan päässä Kauppatorilta. Tila on yhdistettävissä viereiseen 104m2 kokoiseen tilaan.
Arvokiinteistö Rikhardinkadun ja Kasarmikadun kulmassa Esplanadin lähellä. Kohteessa on pääasiassa toimistotilaa sekä muutama kivijalassa sijaitseva liiketila. Alakerrassa sijaitsee viihtyisä ravintola. Kaikki keskustan palvelut ja lukuisat lounasravintolat sijaitsevat vain kivenheiton päässä kohteesta.
