Vuokrataan toimistotilat - Helsinki
Valimotie 15 A, 00380 Helsinki #10850843
Heti vapaa toimistotila!
Osoite
Valimotie 15 A, 00380 Helsinki
Tilatyyppi
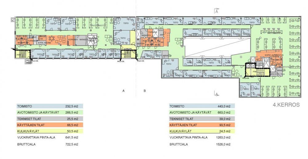
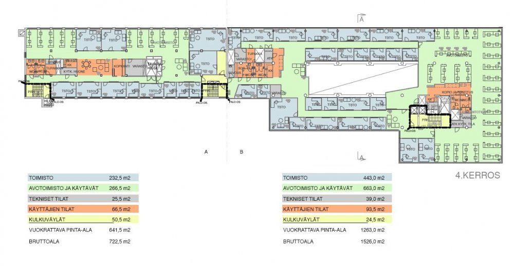
Toimistotilaa
616 m2
Kulkuyhteydet
Valimon rautatieasemalta lähijunat Helsingin keskustaan 10 min. välein. Bussi nro 54 Itäkeskukseen n.7 min. välein. Helsingin keskustaan n.10 km, lentokentälle n.20 km. Lisäksi yhteydet omalla autolla hyvät.
Vapautuu
Kysy
Ota yhteyttä
Pyydä lisätietoa
