Vuokrataan toimistotilat - Helsinki
Elimäenkatu 9, 00510 Helsinki #10850837
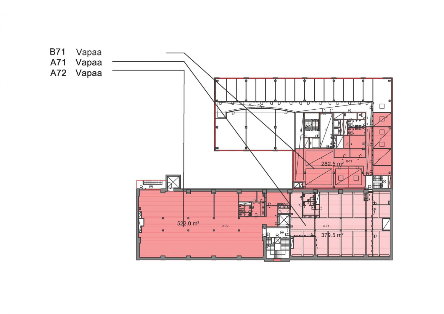
Vuokrataan tyylikästä ja modernia toimistotilaa uudistetusta Vallilan Kravattitehtaasta. Korkea ullakkotoimistotila, joka sopii esim. studiotilaksi. Tilassa on vain kattoikkunat. Tilaan on mahdollista rakentaa myös toimistoparvi, josta olisi avarat näkymät vallilan yli. Yhdistettävissä 500m2 tilaan, jolloin yhteispinta-ala 890m2. Tilan lattiakantavuus on 800kg/m2. Hissiaulojen lattiakantavuus 400kg/m2.
Kravattitehdas on kolmen eri kiinteistön kokonaisuus. Ne sijaitsevat osoitteissa Elimäenkatu 9A, 9B ja 15A. Kaikissa vuokrattavissa toimistotiloissa on huoneistokohtaiset jäähdytysjärjestelmät. Moniin tiloihin on lisäksi suora tavarahissiyhteys.
Elimäenkatu 9 on tehokas saneerattu kombitoimistotalo, jossa huoneistokohtainen jäähdytys. Kiinteistö on alunperin toiminut Helsingin Kutomo ja Kravatti Oy:n toimistorakennuksena ja sen erityispiirteenä on kaarikatto. Tilat soveltuvat sekä toimisto- että pienteolliseen käyttöön. Lastauslaiturit sisäpihalla, tavarahisseillä pääsee suoraan toimitiloihin. Pihakannen kantavuus on 1500 kg/m2, hissiaulojen lattikantavuus 400 kg/m2. Ympäristössä on hyvät lounasravintolapalvelut.
Kiinteistössä on runsaasti parkkipaikkoja. Lämpimiä autohallipaikkoja 40 kpl ja pihapaikkoja 50 kpl. Lisäpaikkoja mahdollista vuokrata viereisestä Q-Park pysäköintiluolasta.
