Vuokrataan toimistotilat - Espoo
Koskelontie 15, 02920 Espoo #10850833
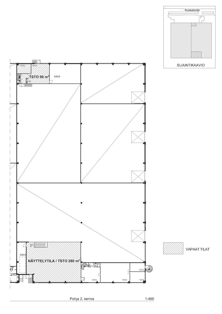
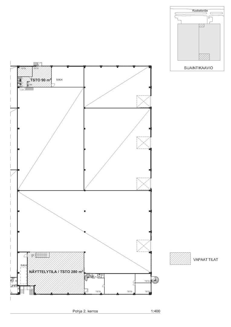
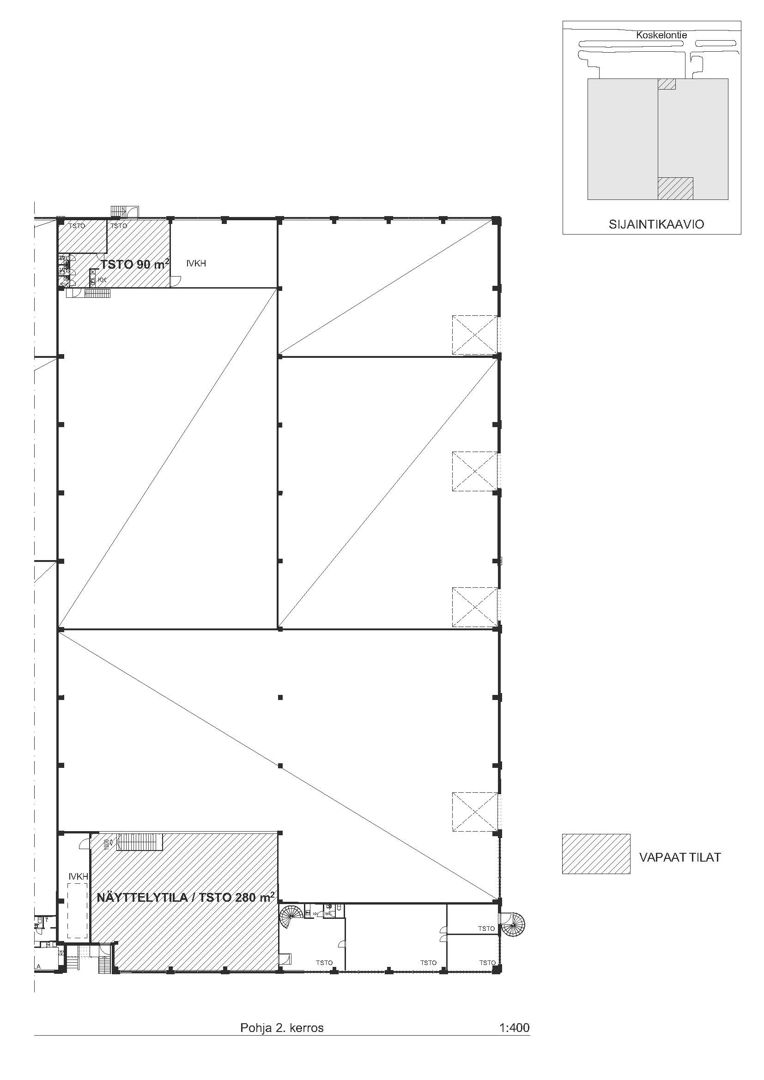
Vuokrattavana 2. kerroksen 90 m2 toimistotila.
Liiketilojen vuokraus ja tiedustelut: C&W Retail Services, puh. 010 836 8418, retail@cushwake.fi.
Koskelontie 15 sijaitsee Kehä 3 tien liittymän varrella ja on helposti saavutettavissa sekä autolla että julkisilla kulkuneuvoilla. Autoilijoille on varattu runsaasti parkkitilaa kohteen edustalta. Koskelontien puolella kulkee bussilinjat 236V ja 566 ja näiden pysäkit sijaitsevat kohteen välittömässä läheisyydessä. Kiintiestössä operoi myös Fressi, Saka ja Wetteri.
Osoite
Koskelontie 15, 02920 Espoo
Tilatyyppi
Toimistotilaa
90 m2
Vapautuu
Kysy
Liitetiedostot
Ota yhteyttä
Pyydä lisätietoa
