Vuokrataan toimistotilat - Helsinki
Mikonkatu 19, 00100 Helsinki #10850826
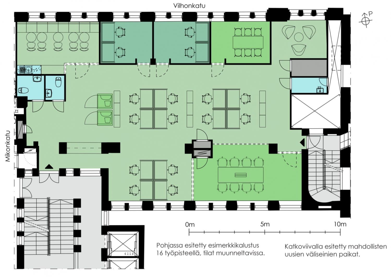
Täysin muuttovalmis tila näkymillä Vilhonkadulle, käynti Mikonkadulta. Valoisat ja siistit pinnat, useampi huone, neuvotteluhuone sekä avotilaa. Sisävalokuvat ovat malliesimerkkejä kiinteistön tiloista.
Historiaa henkivä toimisto- ja liikekiinteistö Fenniakorttelissa. Täysin kunnostetut tilat luovat upeat puitteet erilaisille yrityksille.
Kiinteistö koostuu kahdesta rakennuksesta, joista toiseen on kulku Mikonkadulta ja toiseen Vilhonkadulta. Rakennukset ovat osittain yhteydessä toisiinsa. Osassa tiloista on saneerauksen yhteydessä kunnostettuja, alkuperäisiä elementtejä kuten upea rappukäytävä ja vanha kakluuni.
Kohteen omistaa Sponda Oyj.
Osoite
Mikonkatu 19, 00100 Helsinki
Tilatyyppi
Toimistotilaa
210 m2
Kulkuyhteydet
Julkisilla kulkuvälineillä, raitiovaunulla, metrolla ja linja-autolla pääsee aivan kohteen viereen.
Vapautuu
Kysy
Ota yhteyttä
Pyydä lisätietoa
