Vuokrataan toimistotilat - Helsinki
Vilhonvuorenkatu 11, 00500 Helsinki #10850824
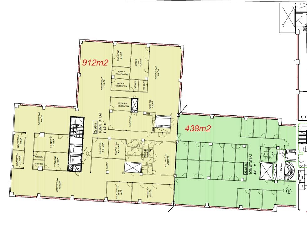
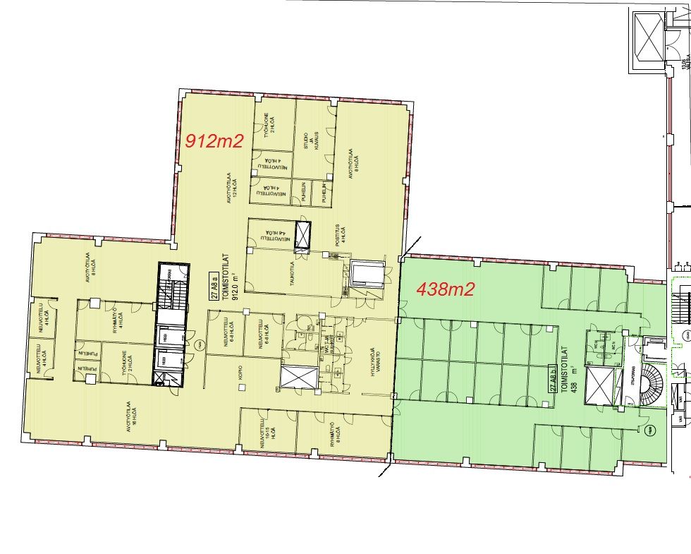
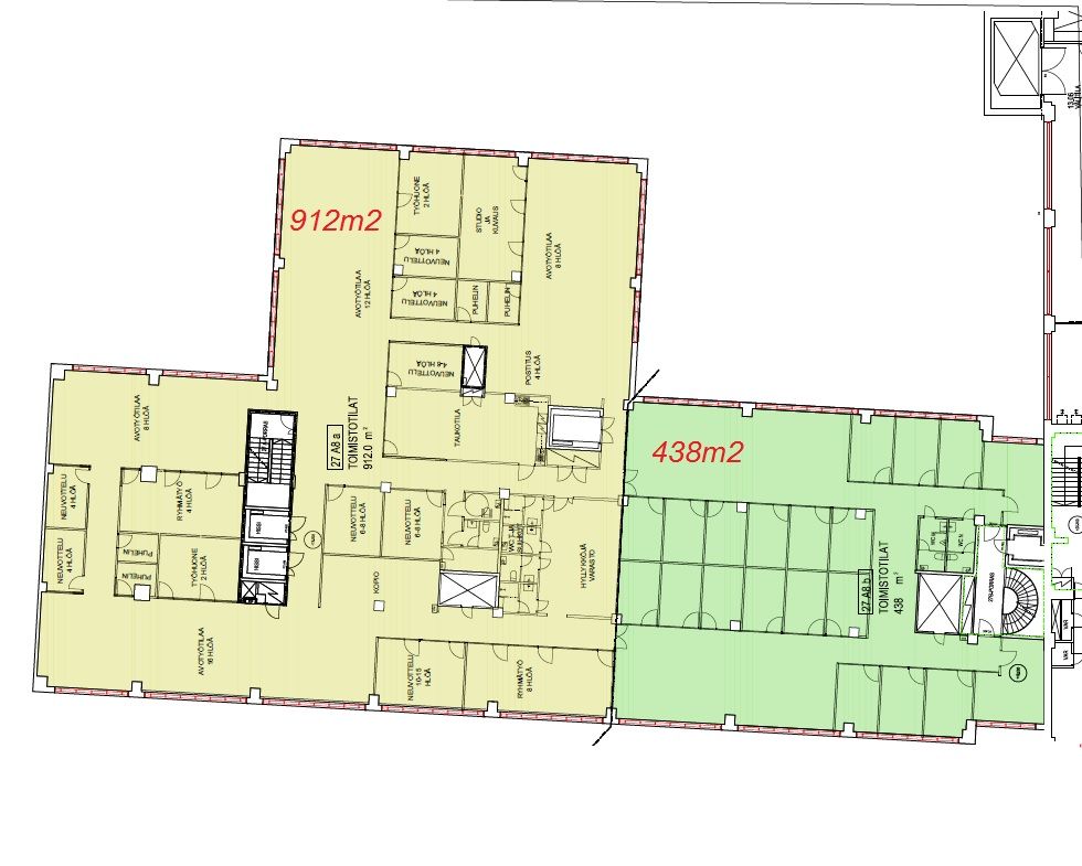
Vuokrataan valoisa avotila merinäköalalla Hattutehtaan Sörnäisten rantatien puoleisen uuden osan 6. kerroksessa. Tila muokataan vuokralaisen tarpeen mukaan ja se on myös mahdollista jakaa 2-3 pienempään tilaan. Sörnäisten Hattutehdas tarjoaa runsaasti mahdollisuuksia niille, jotka tahtovat yhdistää historiallisen tehdasrakennuksen rouheuden ja modernin, talotekniikaltaan ensiluokkaisen toimistoympäristön. Kaikki tilat ovat muokattavissa käyttäjänsä ilmettä ja tarpeita vastaaviksi.
Kiinteistön omistaja remontoi tilan vuokralaiselle sopivaksi niin ominaisuuksiltaan kuin tyyliltäänkin. Kuvissa näkyy tilaan tehty hahmotelma esimerkkinä miten tilaa voi hyödyntää.
Hattutehdas, eli Vilhonvuorenkatu 11 sijaitsee näkyvällä paikalla Sörnäisten Rantatien ja Vilhonvuorenkadun kulmassa, n. 3 km pohjoiseen Helsingin keskustasta. Toimisto- ja teollisuuskiinteistöön kuuluu kolme rakennusta, joiden vuokrattava pinta-ala on yhteensä 24 100 neliötä. Kiinteistössä on lounasravintola, kokous- ja neuvottelutiloja sekä runsaasti autopaikkoja kiinteistön pihalla ja paikoitushallissa. Koneellinen ilmanvaihto ja jäähdytys.
Punatiilinen 6-kerroksinen rakennus valmistui 1938 Osakeyhtiö Silfverberg & Wecksellin Yhdistetyt Hattutehtaat tehdasrakennukseksi. Rakennusta laajennettiin 1951 10-kerroksisella siipirakennuksella. Vuonna 1989 rakennusta laajennettiin Sörnäisten Rantatien varrella olevalla siivellä. Hattutehdas lopetti toimintansa v.1970. Kiinteistössä toimii nykyisin useita kymmeniä yrityksiä.
