Vuokrataan toimistotilat - Helsinki
Sörnäisten rantatie 29, 00500 Helsinki #10850823
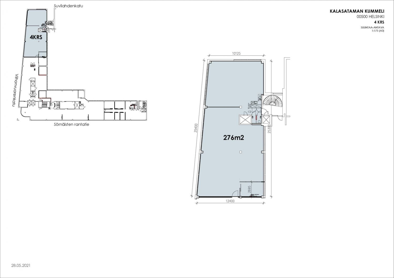
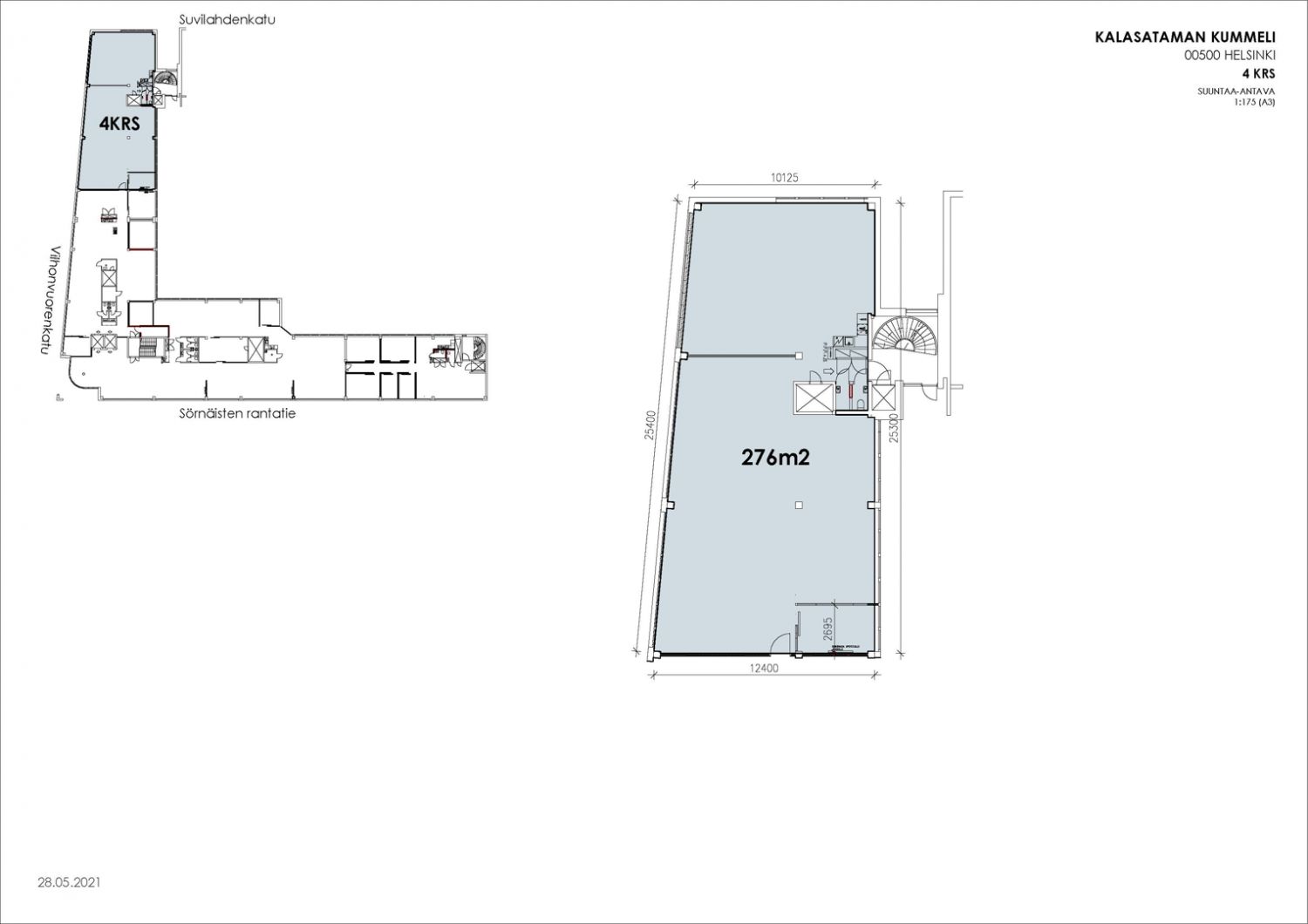
Vuokrattavana muuttovalmis 318 m² monitilatoimisto neljännessä kerroksessa, Kalasataman Kummeli Business Parkissa. Tämä toimiva ja monipuolinen tila sopii erinomaisesti yrityksille, jotka arvostavat joustavia tilaratkaisuja sekä valmiiksi käyttöön otettavia tiloja.
Kiinteistön erinomaisen sijainnin ansiosta arki sujuu vaivattomasti: Sörnäisten ja Kalasataman keskellä sijaitseva toimisto on vain kävelymatkan päässä metroasemalta ja kauppakeskus REDIä. Vuokralaiset saavat myös käyttöönsä kiinteistön kattavat palvelut, kuten aulapalvelun, lounasravintolan ja kokoustilat.
Tämä on tilaisuus yrityksellesi saada toimivat ja modernit puitteet keskeisellä sijainnilla!
Täyden palvelun business park Kalasataman Kummeli palvelee joustavasti erilaisten asiakkaiden tarpeita. Industrial-henkinen merellinen kiinteistö on remontoitu täysin vuonna 2015. Merkittävä kiinteistökokonaisuus Helsingin Sörnäisissä, Sörnäisten rantatien ja Vilhonvuorenkadun kulmassa. Katutasossa liiketilaa ja ylemmissä kerroksissa toimistotiloja. Yhdeksän vuokrattavaa neuvottelutilaa. Kiinteistössä myös korkeatasoinen lounasravintola. Talotekniikka, ilmanvaihto, jäähdytys ja IT-tekniikka on täysin uudistettu. Kaukokylmän avulla rakennus jäähtyy haluttuun lämpötilaan. Korkeatasoinen lounasravintola ja monipuoliset palvelut. Talossa on aulapalvelu ja isot hissit esteetöntä kulkua varten. Pyöräparkki, pukuhuoneet ja suihkut. Ylimmän kerroksen auditoriosta upea näköala yli Helsingin. Autohallista vuokrattavissa autopaikkoja. Vieraspysäköinti kadun toisella puolella.
Keskusta on noin 5 minuutin automatkan päässä. Lentokenttä noin 25 minuutin päässä.
