Vuokrataan toimistotilat - Helsinki
Pitkänsillanranta 3, 00530 Helsinki #10850812
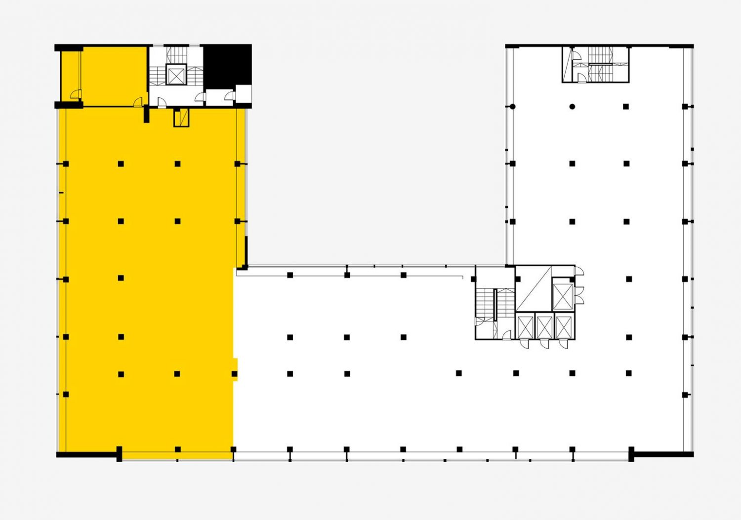
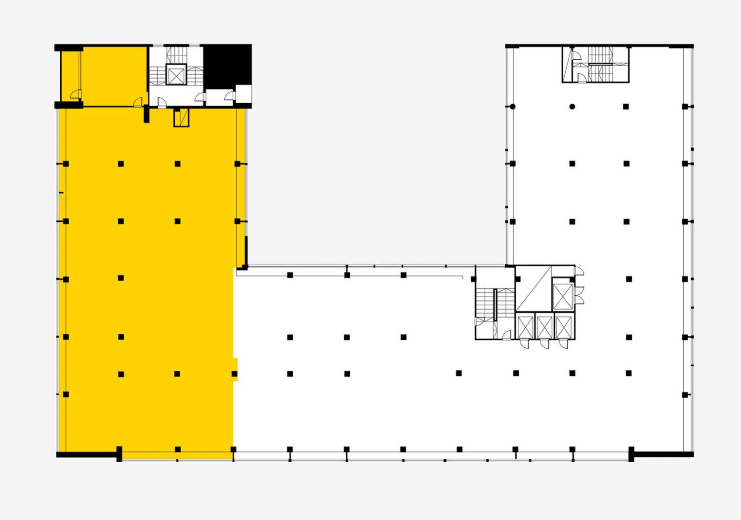
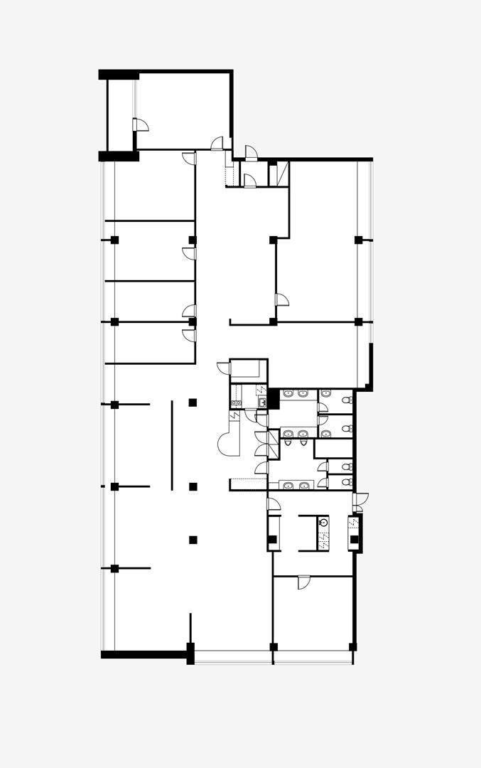
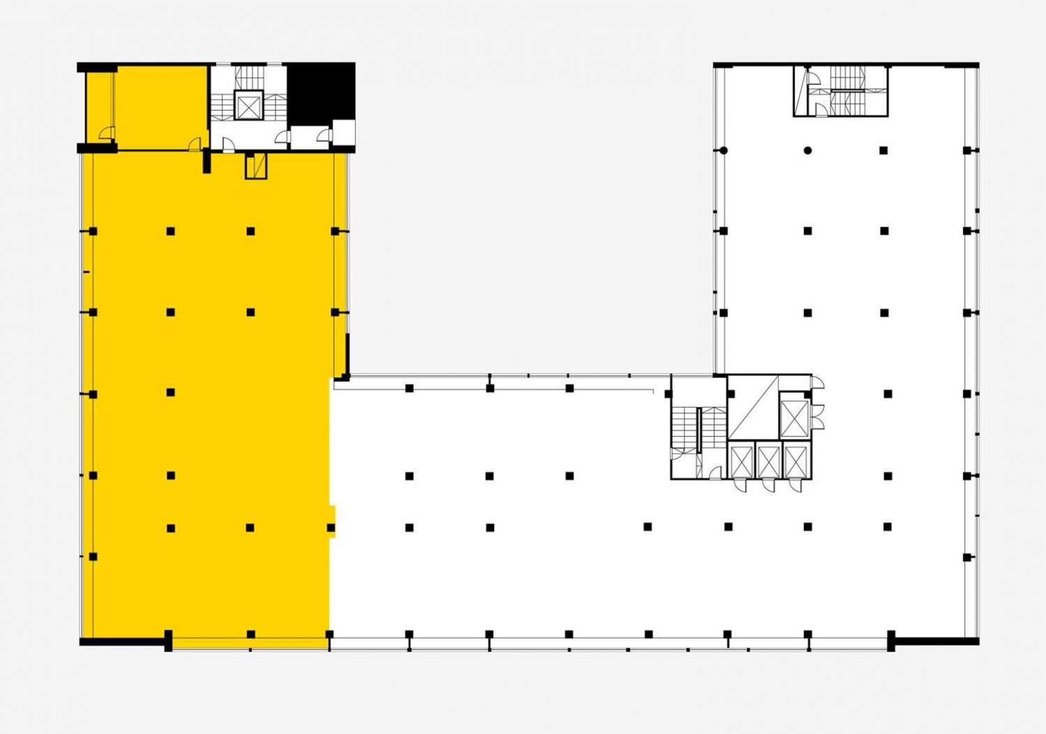
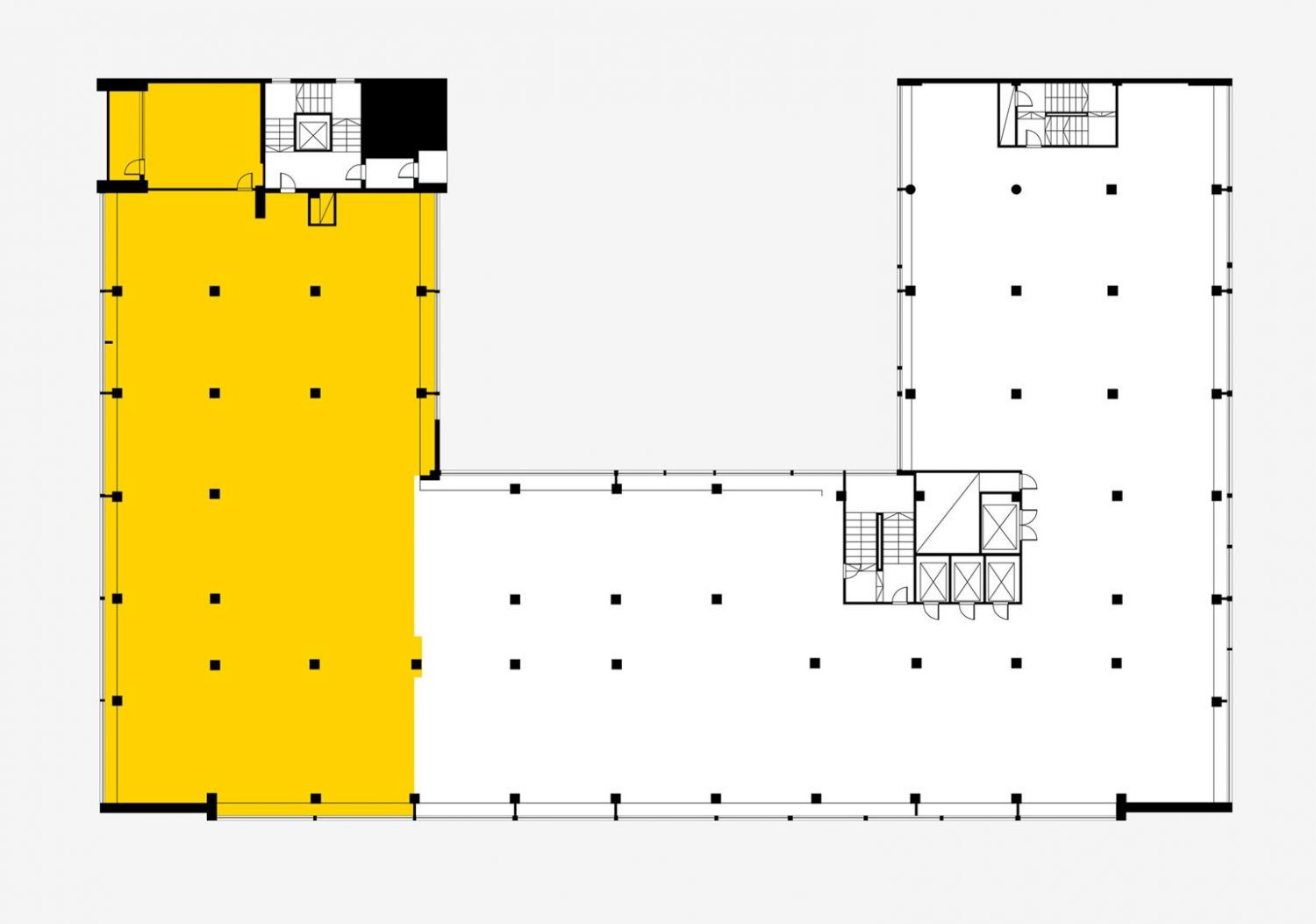
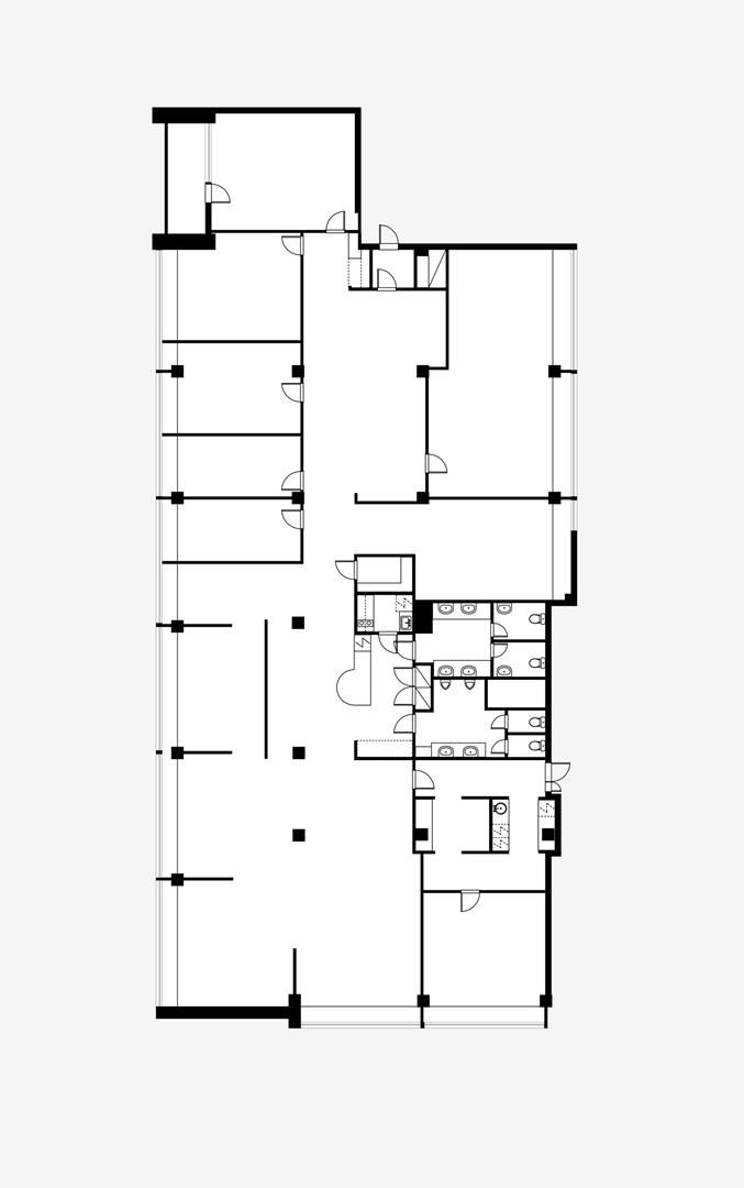
Vuokrattavissa 5. kerroksen toimitila, jossa avotila sekä kahdeksan toimisto- ja neuvotteluhuoneita. Huikeat maisemat Töölönlahdelle. Oma suihkumahdollisuus. Tilasta on huikeat maisemat Töölönlahdelle!
Pitkänsillanranta 3 sijaitsee Hakaniemen sydämessä, veden äärellä. Moderneista toimitiloista avautuvat kuvankauniit maisemat Siltavuorenrannan ja Eläintarhanlahden suuntaan. Rakennuksesta astut suoraan rantapromenadille. Pitkänsillanranta on valinta sinulle, joka etsit ainutlaatuista sijaintia keskustan läheisyydestä. Monipuolisia toimitiloja on uudistettu asiakkaiden tarpeita vastaaviksi. Toimitiloissa on koneellinen ilmanvaihto ja jäähdytetty tuloilma. Rakennuksesta löytyy kuntosali ja näköetäisyydeltä runsaasti ravintoloita. Kohteesta on hyvät kulkuyhteydet julkisilla kulkuvälineillä. Tervetuloa nauttimaan meren läheisyydestä ja yritysten tarpeiden mukaan suunnitelluista toimitiloista.
