Vuokrataan toimistotilat - Helsinki
Valimotie 13 B, 00380 Helsinki #10850807
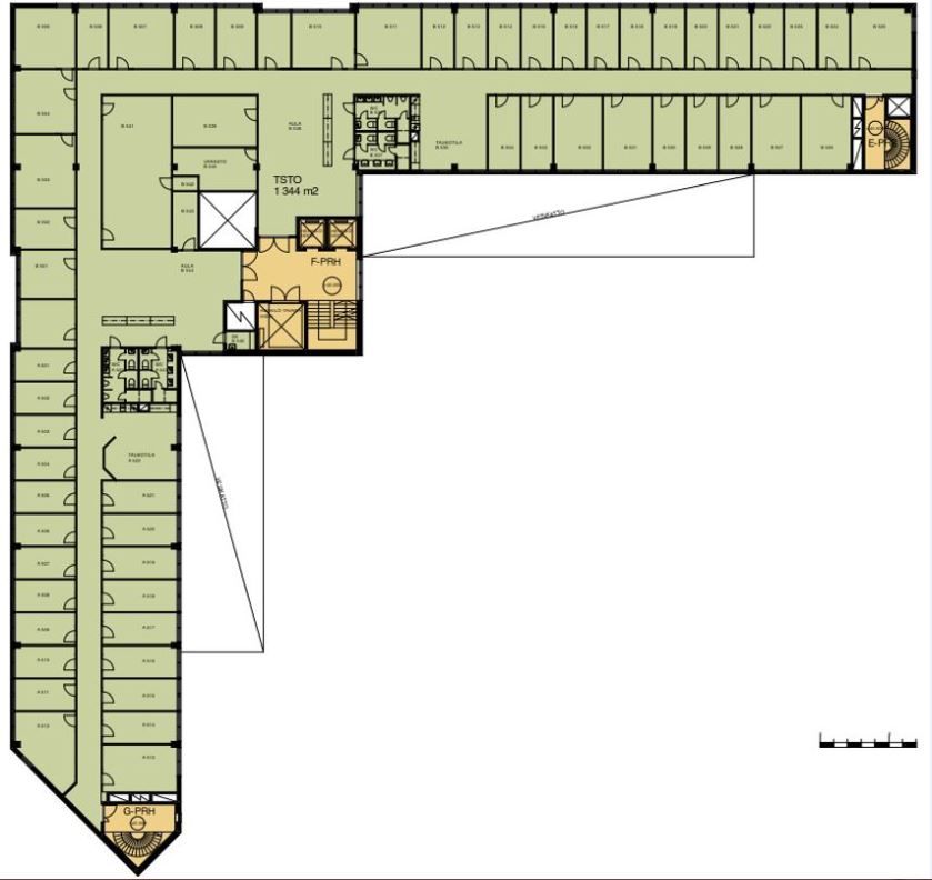
Toimistotila, joka käsittää koko rakennuksen viidennen kerroksen. Tila sisältää sekä yksittäisiä toimistohuoneita että runsaasti avointa tilaa. Mahdollista vuokrata myös osa kerroksesta, esimerkiksi jakamalla tila kahteen eri siipeen.
Rappukäytävässä henkilöhissin lisäksi myös tilava tavarahissi.
Hyväkuntoista toimisto-/tuotantotilaa Valimotalossa. Turvallista kulunvalvottua tilaa. Koneellinen jäähdytetty ilmanvaihto/erillisjäähdytys. Hyvä lastauslaituri ja iso tavarahissi. Palvelut viereisessä rakennuksessa; Aulapalvelut, modernit erikseen vuokrattavat neuvottelutilat, suosittu lounasravintola Factory, sauna ja kuntosali. Autopaikkoja autohallissa.
