Vuokrataan toimistotilat - Helsinki
Valimotie 15 A, 00380 Helsinki #10850801
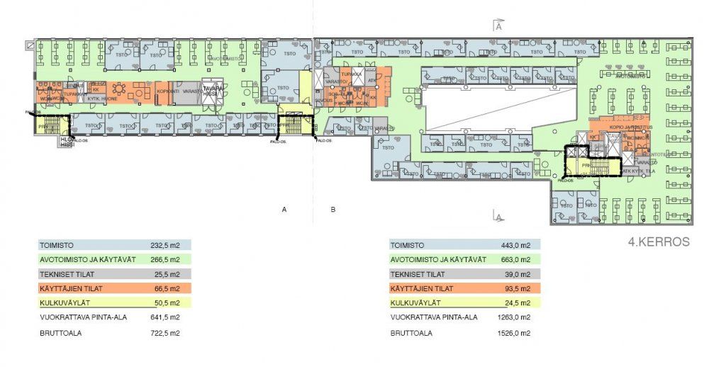
Vuokrattavissa 600 m2 toimistotila neljännessä kerroksessa A-rakennuksessa.
Kiinteistö Oy Valimotie 15 koostuu kahdesta toisiinsa liitetystä rakennuksesta A ja B, jotka tarjoavat tehokkaat ja nykyaikaiset tilaratkaisut ja vuokralaisten käyttöön runsaasti pysäköintipaikkoja. Viereisen Kiinteistö Oy Valimotie 17-19 palvelut käytettävissä: henkilöstöravintola, aulapalvelu, kokoustilat, auditorio sekä kuntosali uima-altaineen ja edustustilat. Kiinteistöt 15 ja 17-19 on yhdistetty toisiinsa Valimokujan ylittävällä putkella. Rakennuksessa on koneellinen ilmanvaihto ja jäähdytys. Tehokkaat tilaratkaisut. Hyvät liikenneyhteydet. Palveluiden läheisyydessä. Paikoitustilaa myös maan alla.
