Vuokrataan toimistotilat - Jyväskylä
Kivääritehtaankatu 6 JYVÄSKYLÄ, 40100 Jyväskylä #10850799
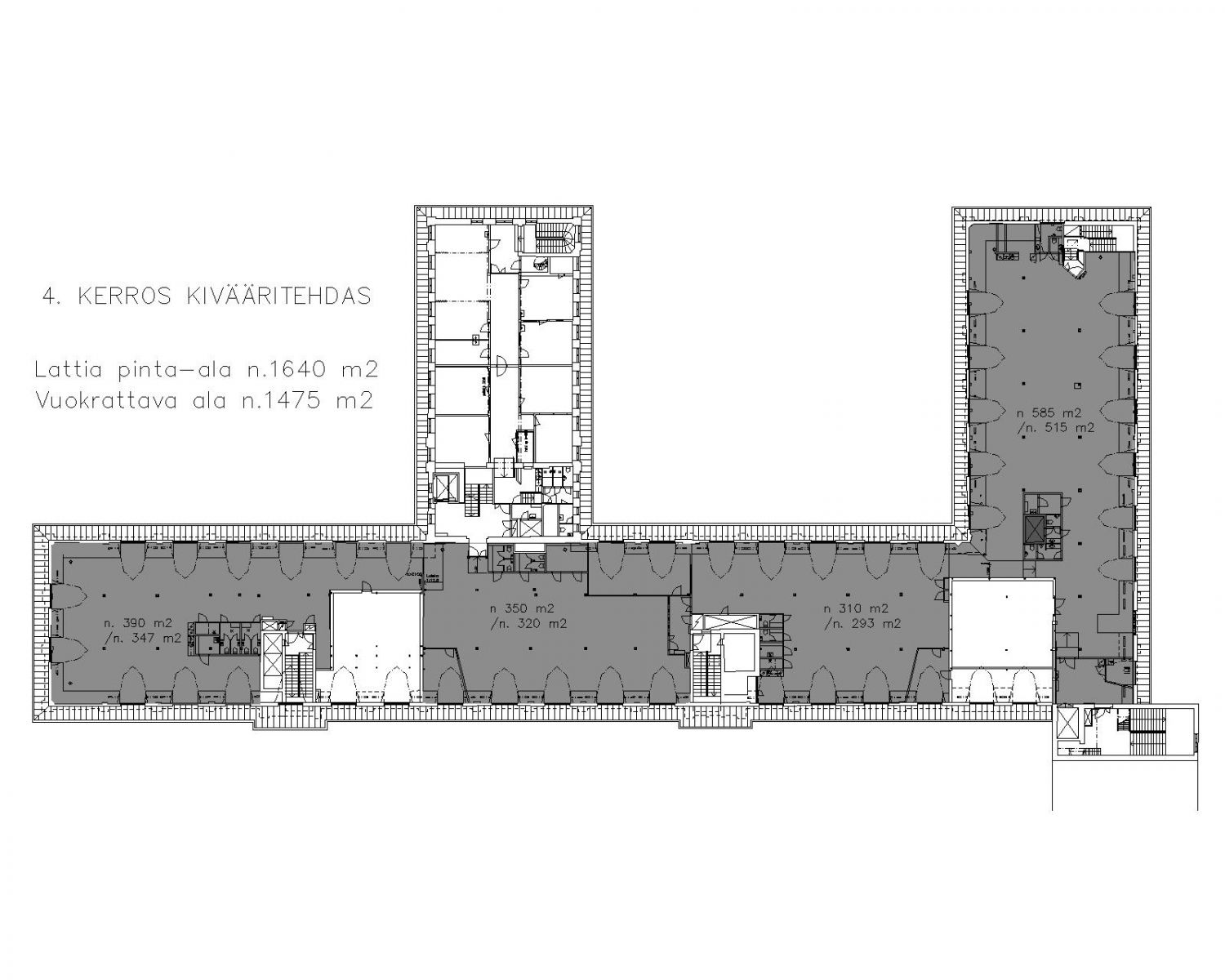
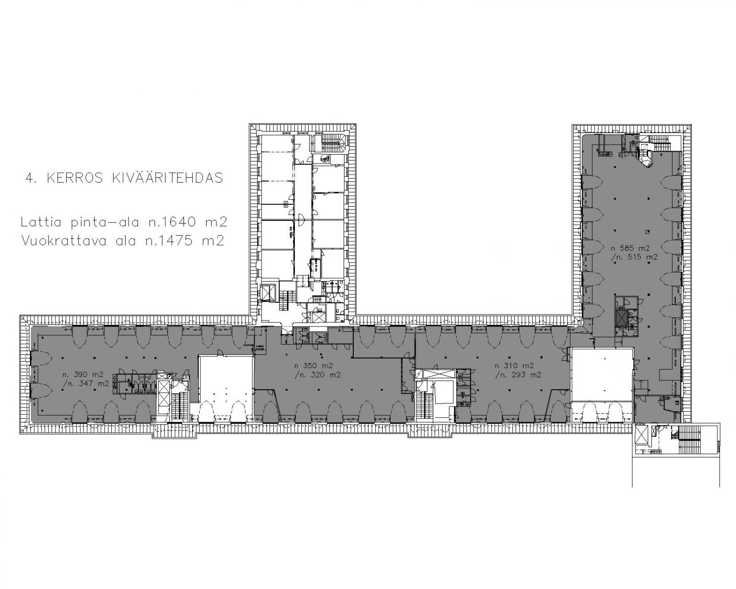
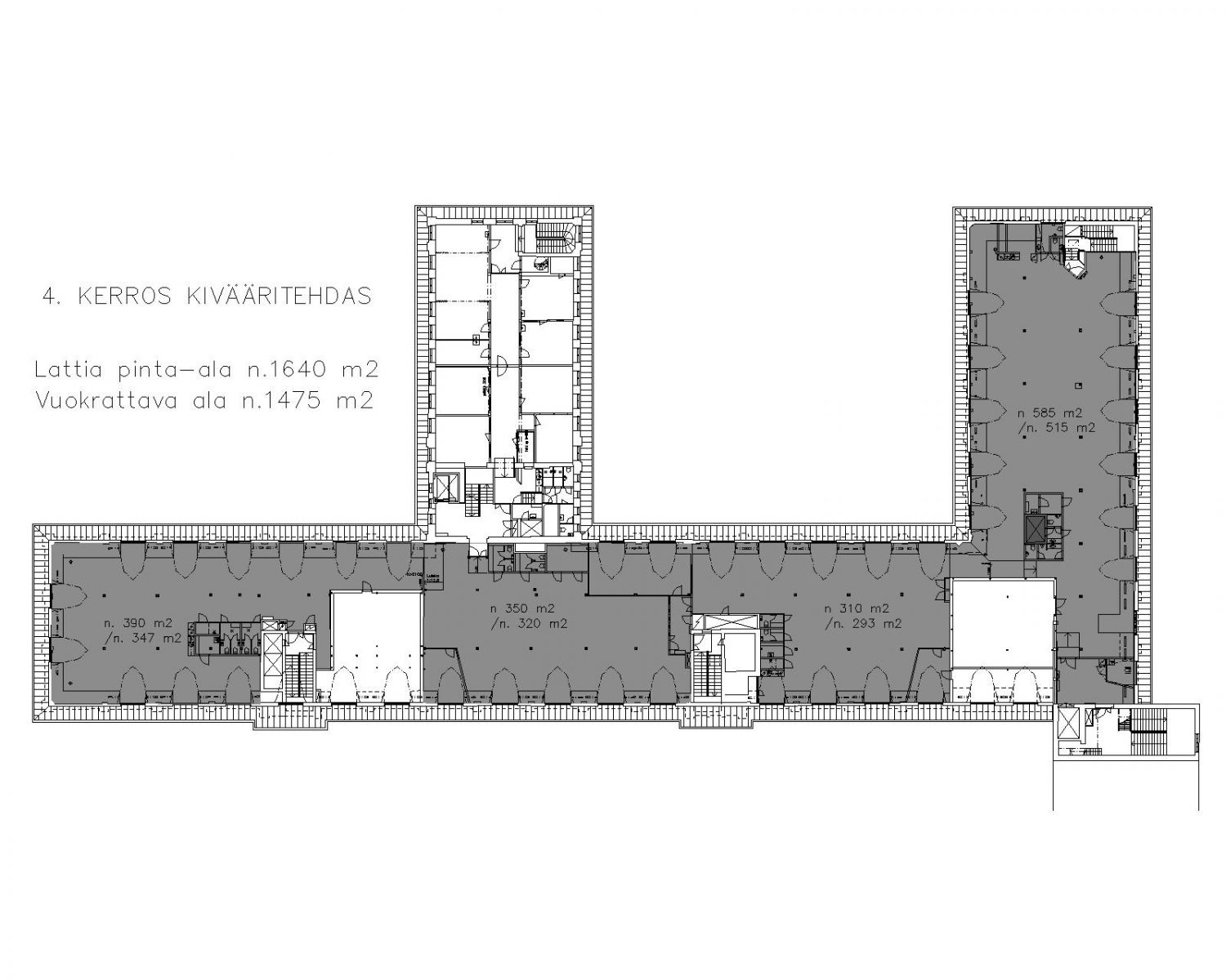
Vuokrattavana siistiä 4. kerroksessa olevaa nykyaikaista jäähdytettyä toimistotilaa. Upea ja uniikki ilme, mitä tehostaa vaihteleva huonekorkeus persoonallisen harjakaton ja kattoikkunoiden ansiosta. Tila jaettavissa pienempiin kokonaisuuksiin. Sisävalokuvat ovat havainnekuvia kiinteistön tiloista.
Kivääritehdas on vetovoimainen yrityspuisto historiallisessa ympäristössä. Vuonna 1927 valmistunut Valtion Kivääritehdas on osa suomalaista historiaa. Alun perin puolustuslaitoksemme tarpeisiin perustettu tehdas on modernisoitu vastaamaan nykyajan käyttäjän toiveita aina toimistotiloista tuotannon vaativiin tarpeisiin. Alueen arvokkuuden säilyttämiseksi on kulttuurihistoriallisesti merkittävät rakennukset määrätty suojelukohteeksi.
Kivääritehdas sijaitsee Tourulassa, nelostien ja Vaajakosken moottoritien kainalossa, vain muutaman minuutin ajomatkan päässä Jyväskylän ydinkeskustasta. Tourulaan on helppo tulla joka puolelta kaupunkia, ja pysäköintitilaa riittää. Tourulasta pääsee nopeasti keskustaan, kauppakeskus Seppään ja Kankaan alueelle.
