Vuokrataan liiketilat - Lahti
Aleksanterinkatu 25 LAHTI, 15140 Lahti #10850790
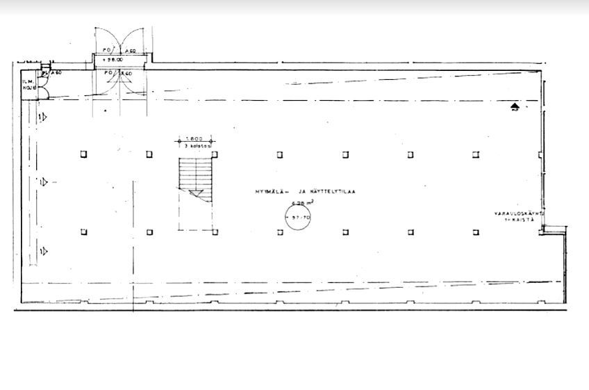
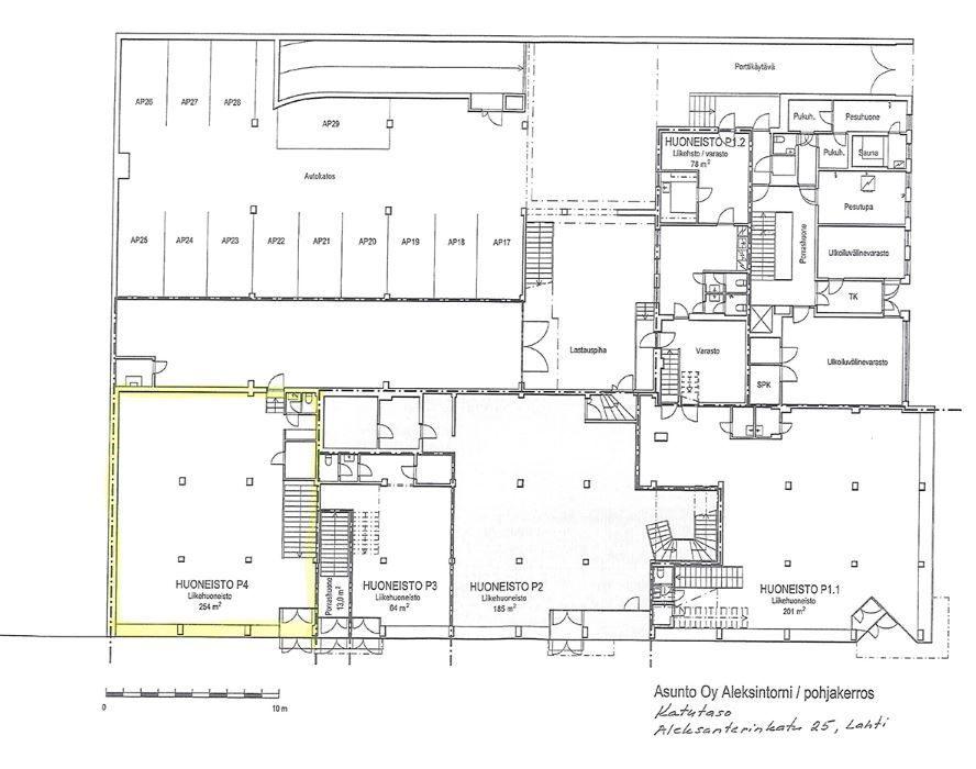
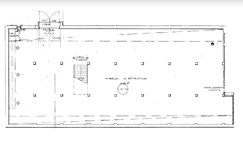
Katutason liiketila Lahden keskustassa Aleksitornissa kauppakeskus Trioa vastapäätä. Katutason liiketilassa (254 m2) on isot näyteikkunat kadulle ja alakerran tilassa (431 m2) on varastointiin sopivaa tilaa. Ei sovellu ravintolakäyttöön.
Liiketilojen vuokraus ja tiedustelut: C&W Retail Services, puh. 010 836 8418, retail.fi@cushwake.com.
Lahden keskustan liikekiinteistö pääkadulla; Aleksintornia ei pysty näkemättä ohittamaan. Matka rautatieasemalle taittuu kävellen. Alueella on yleisiä pysäköintilaitoksia palvelemassa omalla autolla liikkuvia.
Osoite
Aleksanterinkatu 25 LAHTI, 15140 Lahti
Tilatyyppi
Liiketilaa
431 - 685 m2
Vapautuu
Kysy
Ota yhteyttä
Pyydä lisätietoa
