Vuokrataan toimistotilat - Helsinki
Pohjoinen Rautatiekatu 25, 00100 Helsinki #10850786
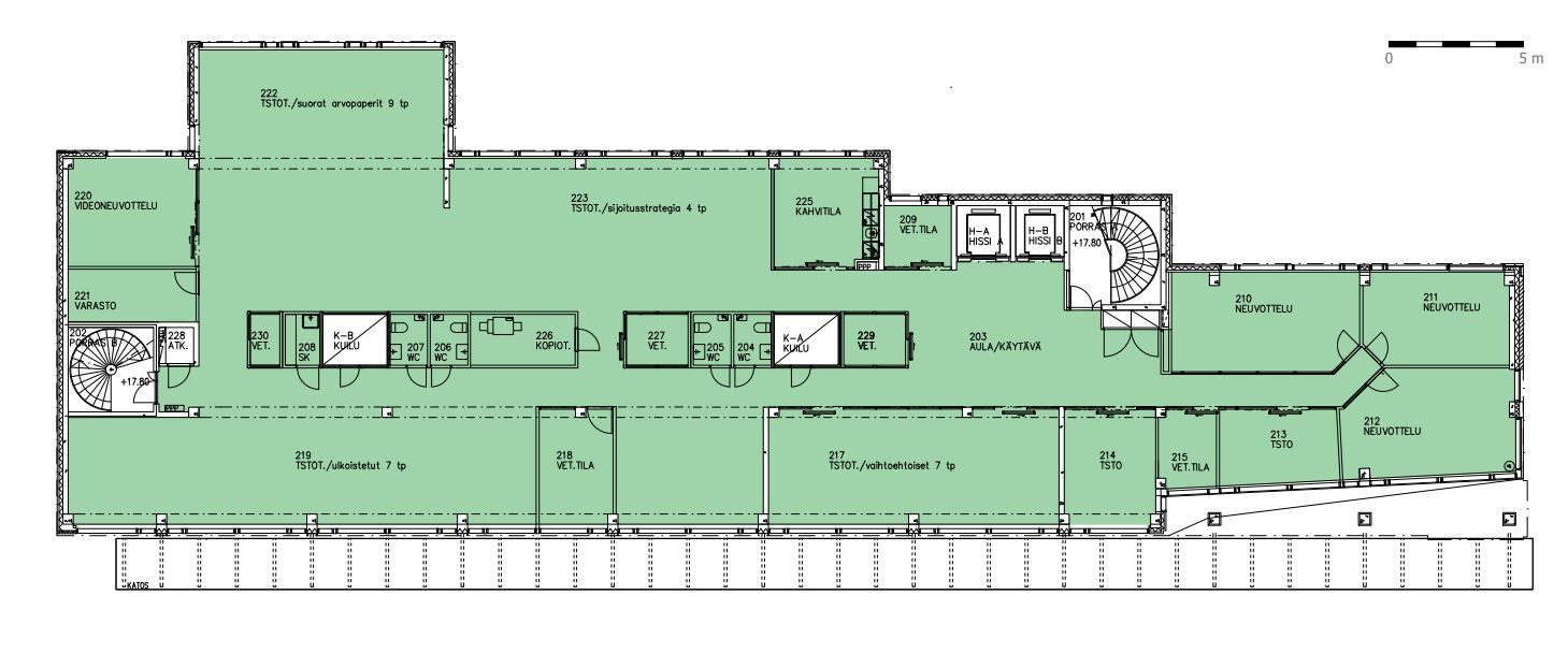
Vuokrattavana 2. kerroksen moderni 616 m2 toimistotila vuonna 2017 remontoidusta kiinteistöstä. Sisävalokuvat ovat esimerkkejä kiinteistön toimitiloista.
Moderni ja laadukas vuosina 2016-2017 täysin remontoitu toimistokiinteistö Pohjoisen Rautatiekadun ja Runeberginkadun kulmauksessa, pyöräilyn pääväylä Baanan varrella. Tekniikaltaan talo on uudenveroinen. Vuokrattavan kiinteistön vahvuuksia ovat palveluiden läheisyys sekä erinomainen saavutettavuus julkisilla liikennevälineillä.
Valoisassa ja viihtyisässä rakennuksessa on seitsemän maanpäällistä toimistokerrosta, viihtyisä saunaosasto ullakkokerroksessa, kaksi kellarikerrosta, joissa on runsaasti varastotilaa sekä parkkihalli 15 autolle. Rakennuksessa on kaksi hissiä sekä keittiö- ja taukotilat kaikissa kerroksissa. Ensimmäisessä kerroksessa on useita neuvottelu- ja kokoustiloja, jotka on helppo tarvittaessa muuntaa esimerkiksi asiakaspalvelukäyttöön.
Kiinteistön palvelut: Aulapalvelu, kokoushuoneita ja auditorio (koulutustila), sauna, asiakaspysäköinti.
