Vuokrataan toimistotilat - Helsinki
Valimotie 9-11, 00380 Helsinki #10850771
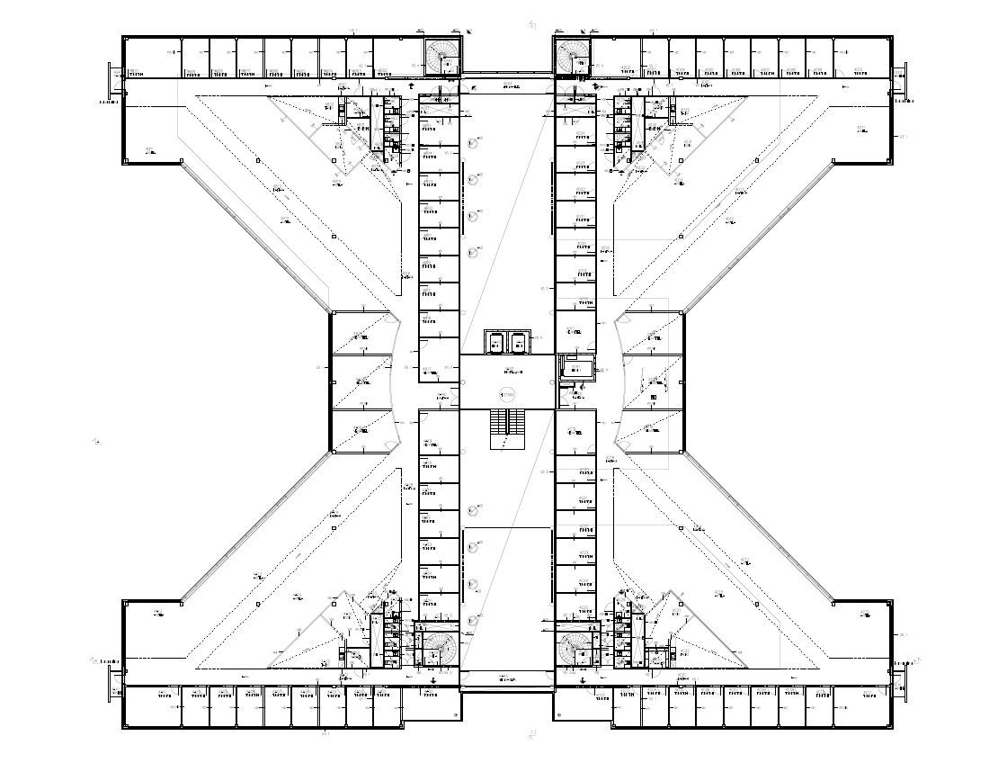
Tämä edustava 2969 m2 toimistotila kattaa koko kiinteistön neljännen kerroksen. Toimistossa on avotilaa, huoneita, keittiöpisteitä sekä omat wc-tilat. Kerroksen jokaisessa siivessä on myös oma parveke. Tätä toimitilaa voidaan muokata tulevan käyttäjän tarpeiden mukaiseksi.
Havainnekuvat ovat taiteilijan ehdotuksia tilojen sisustuksesta. Suunnittelemme tilojen lopullisen toteutuksen aina asiakkaan tarpeiden ja toiveiden mukaan. Tässä kohteessa sinulla on erityisen hyvät mahdollisuudet vaikuttaa tilaratkaisuihin toivotpa sitten avointa tilaa tai rauhallisia työskentelysoppia.
Pitäjänmäellä sijaitseva Valimotie 9-11 tarjoaa yrityksille modernit puitteet ja monipuoliset palvelut. Talossa on aulapalvelu, suosittu lounasravintola, catering- ja kokouspalvelut sekä saunatilat edustustilaisuuksia varten. Autopaikkoja kohteen kellarissa sijaitsevassa autohallissa ja kiinteistön pihakannella. Kiinteistön kellarissa myös varastotilaa. Jäähdytyspalkit. Nykyaikainen tietoliikennetekniikka. Kiinteistöllä on hyvä sijainti lähellä Vihdintietä ja Valimon juna-asemaa.
Kiinteistölle on myönnetty BREEAM Good ympäristösertifikaatti.
