Vuokrataan toimistotilat - Helsinki
Kumpulantie 15, 00520 Helsinki #10850766
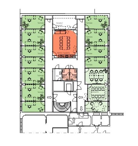
Kolmannen kerroksen 346 m2 toimistotila. Tila sijaitsee hyvien kulkuyhteyksien varrella Vallilassa. Sisävalokuvat ovat malliesimerkkejä kiinteistön tiloista.
Elimäenkatu 30 toimitilat ovat viihtyisiä, teollisuushenkisiä ja hiljattain uudistettuja. Toimistot ovat muokattavissa tarpeiden mukaan. Lähistöllä on useita lounasravintoloita. Kiinteistö sijaitsee kehittyvällä alueella, johon Helsinki panostaa lähitulevaisuudessa paljon. Jo nyt alue muodostaa merkittävän liiketoiminnan keskittymän. Kiinteistöstä on loistavat kulkuyhteydet keskustaan ja Pasilan juna-asemalle.
Industrial-henkistä, uutta vastaavaa toimitilaa Helsingin Vallilassa. Vuonna 1999 valmistunut toimistotalo Vallilassa loistavien liikenneyhteyksien varrella. Vanha teollisuuskiinteistö, joka on muutettu toimistotiloiksi. Kiinteistöllä on kaksi osoitetta: Kumpulantie 15 ja Elimäenkatu 30.
Tilat ovat pääosin avokonttorina, korkeat ja teollisuushenkiset. Tilaan tulee tavarahissi; lastaus sisäpihalta. Kiinteistössä on tilakohtainen jäähdytys sekä Cat6-kaapelointi. Omassa autohallissa on 254 paikkaa. Lisäpaikkoja voi helposti vuokrata viereisen rakennuksen pysäköintihallista. Kiinteistön kerroksista on yhteys kiinteistön omiin pysäköintitiloihin. Talossa palvelee lounasravintola.
Pasila on alue, johon Helsinki panostaa lähitulevaisuudessa paljon. Jo nyt se muodostaa merkittävän liiketoiminnan keskittymän.
