Vuokrataan toimistotilat - Helsinki
Sentnerikuja 1, 00440 Helsinki #10850757
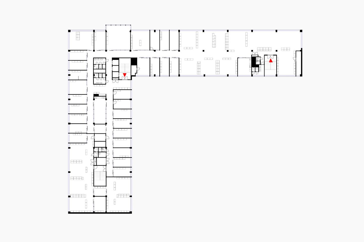
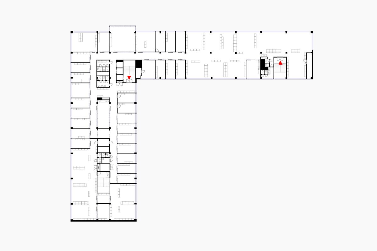
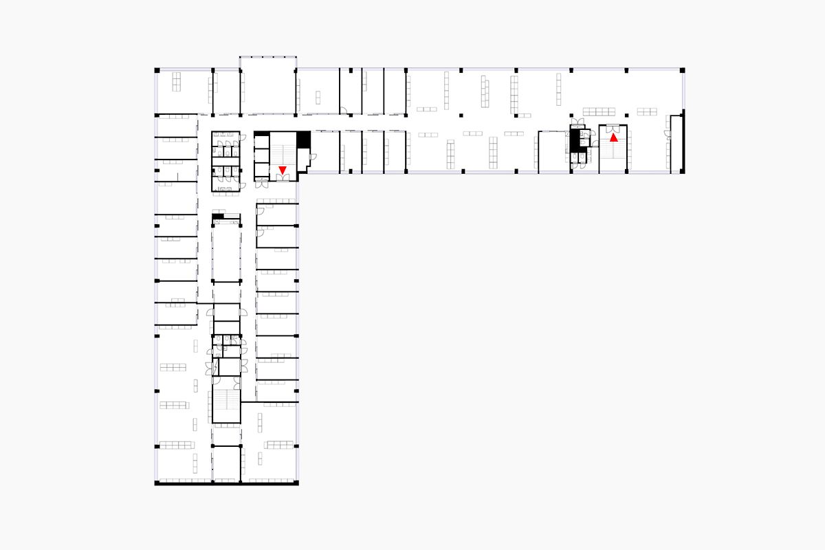
Koko kerroksen (4.) valoisa toimistohuoneisto hyvällä sijainnilla Helsingin Lassilassa. Tilat ovat joustavasti muokattavissa, ja myös yhdistettävissä ylemmän kerroksen kanssa. Liikenteellisesti optimaalinen sijainti Vihdintien varrella lähellä Kehä I:n liittymää. Pohjois-Haagan juna-asemalle lyhyt kävelymatka.
Nykyaikainen, moneen taipuva toimistokiinteistö helposti saavutettavalla sijainnilla Lassilassa. Tästä kiinteistöstä löytyy toimitilat isommallekin yritykselle. Kiinteistön vuokrattavat toimitilat ovat joustavasti muokattavissa eri kokoisten organisaatioiden tarpeisiin esimerkiksi yhdistelemällä kerroksia. Tilat voidaan toteuttaa niin huonetoimistoina kuin moderneina avo- tai monitilatoimistoina. Toimistojen lisäksi kiinteistössä on sisääntulokerroksessa sijaitsevia aputiloja, kuten aulapalvelupiste, kokouskeskus, saunaosasto sekä pienvarastoja.
Toimistorakennus on palvellut Lassila & Tikanoja Oyj:n pääkonttorina. Tilat on remontoitu Lassila & Tikanojalle. Kiinteistön vuokrattavat toimitilat ovat joustavasti muokattavissa eri kokoisten organisaatioiden tarpeisiin esimerkiksi yhdistelemällä kerroksia. Tilat voidaan toteuttaa niin huonetoimistoina kuin moderneina avo- tai monitilatoimistoina. Toimistojen lisäksi kiinteistössä on sisääntulokerroksessa sijaitsevia aputiloja, kuten aulapalvelupiste, kokouskeskus, saunaosasto, pukeutumis- ja suihkutilat henkilökunnalle sekä pienvarastoja.
Kiinteistö sijaitsee Vihdintien ja Kehä I:n välittömässä läheisyydessä. Muutaman minuutin kävelymatkan päässä Sentnerikujasta on Pohjois-Haagan juna-asema, josta on Kehäradan kautta yhteys myös Helsinki-Vantaan lentoasemalle. Kiinteistön pihalla on runsaasti pysäköintipaikkoja ja vieressä on myös pysäköintitalo, josta on mahdollista vuokrata lisää pysäköintitilaa.
Kiinteistössä on koneellinen ilmanvaihto ilman jäähdytystä. Viereisessä rakennuksessa sijaitsee kotiruokaa tarjoava lounaskahvila sekä sushisalaattibaari. Lyhyen kävelymatkan päässä Sodexon lounasravintola. Lähistöllä myös S-market Lassila sekä Kauppakeskus Kaari, jossa mm. Prisma ja Posti.
