Vuokrataan toimistotilat - Helsinki
Työpajankatu 9 D, 00580 Helsinki #10850752
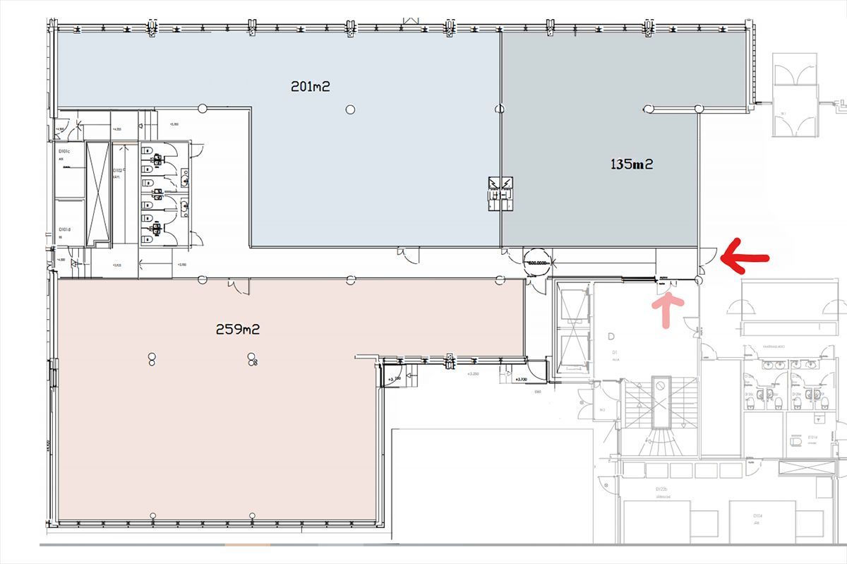
Ensimmäisen kerroksen toimistotila. Tila soveltuu myös näyttelytilaksi. Ikkunat pohjoiseen kadulle ja etelään sisäpihalle. Tila on tällä hetkellä raakatilana. Tilaratkaisu muokattavissa asiakkaan tarpeiden mukaisiksi. Tilassa on ilmastointi. Huonekorkeus keskialueella n. 2,94 m, sisäpihan puolen laajemmalla alueella n. 2,63 m ja kadun puolella n. 3,37 m. Kulku sisäkautta lounasravintolaan. Samassa kerroksessa on vuokrattavissa neuvottelutilaa.
Korkean turvallisuustason toimistokiinteistö, jossa on mahdollista toteuttaa tilaratkaisut huone-, toimisto- ja kombiratkaisuina vuokaralaisten tarpeiden mukaan.
Kuvissa esimerkkejä toimistotiloista.
TROOLI - Moderni toimistokiinteistö loistavalla sijainnilla trendikkäällä ja kehittyvällä alueella Kalasatamassa, metroaseman kyljessä ja meren läheisyydessä. Vieressä Helsingin Tukkutori, Teurastamo ja kauppakeskus REDI. Nykyaikaiset tilat ovat korkealaatuiset ja muuntojoustavat, ja niissä on ilmastointi. Huonekorkeudet kiinteistössä 2,7 - 3,2 m.
Kiinteistössä on suuri auditorio ja kuntosali sekä kulku sisäkautta lounasravintolaan, autohalliin ja liikuntatiloihin. Usealle tai yhdelle käyttäjälle soveltuvat siistit tilat. Aulapalvelu, vuorattavia neuvottelutiloja, laadukas ravintola, kahvila ja catering. Lisäksi kellarikerroksessa vuokrattavissa varastotilaa.
Kiinteistölle on myönnetty LEED Kultatason ympäristösertifikaatti.
