Vuokrataan toimistotilat - Helsinki
Mikonkatu 13, 00100 Helsinki #10850749
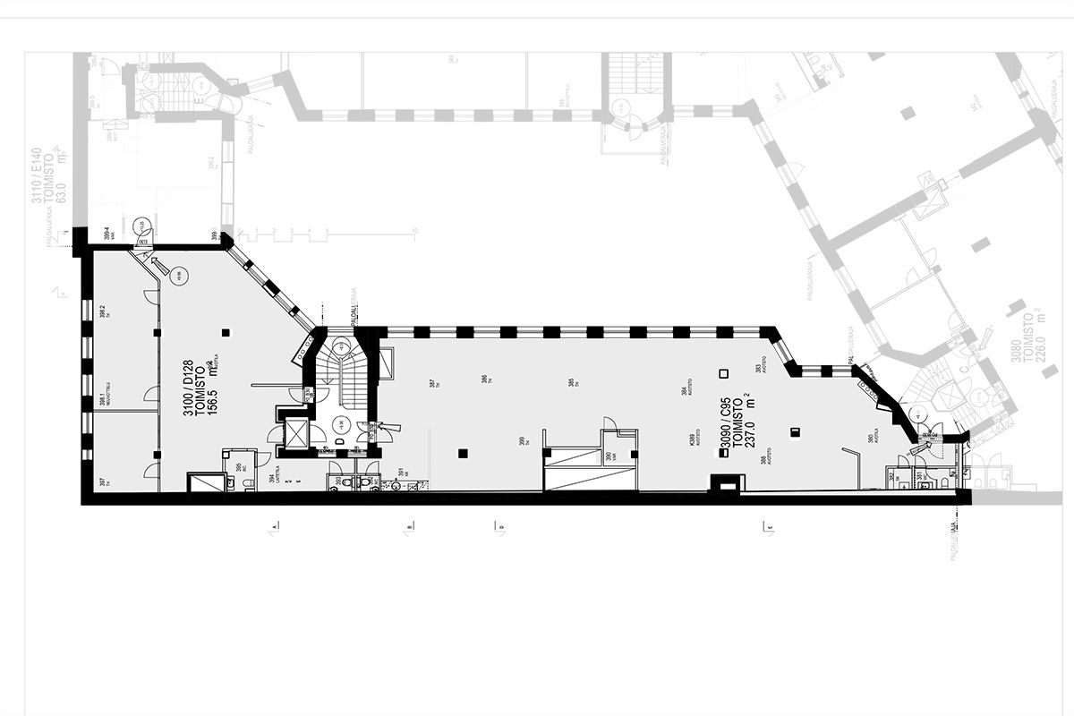
Vuokrattavana 3. kerroksen 237 m2 toimistotila. Tila juuri remontoitu modernein värivaihtoehdoin ja skandinaavisin materiaalein upeaksi avotoimistoksi, jossa on muutama neuvottelutila. Tilaan kaksi sisäänkäyntiä. Tila sijaitsee sisäpihalla ja on saavutettavissa sekä Mikonkadulta että Kaisaniemenkadulta. Sisävalokuvat ovat havainnekuvia.
Upea kohta 100-vuotinen "maamerkki", kulmakiinteistö Mikonkatu 13 / Kaisaniemenkatu 1 keskellä Helsingin vilkkainta ydinkeskustaa, vain muutaman askeleen päässä Rautatieasemalta. Kulttuurihistoriallisesti merkittävä ja suojeltu kiinteistökokonaisuus.
Kiinteistössä on tehty v.2015-2019 mittavat muutostyöt (julkisivut saneerattu, katot uusittu, sisäpiha pinnoitettu, yleiset tilat, viemärilinjat sukitettu, rappukäytävien valaistus ja lattiat päivitetty) kunnioittaen talon henkeä ja arkkitehtuuria. Upeat suihku/pukutilat kellarissa. Lisäksi tilava ja turvallinen pyöränsäilytystila.
Kohde on käynyt läpi moninaisia vaiheita lähes 100-vuotisen historiansa aikana. Alunperin kiinteistö toimi kotina helsinkiläisille yrittäjäperheille ja loisteliaana hotellina. Nyt tilat ovat toimisto- ja liiketiloina.
