Vuokrataan toimistotilat, tuotantotilat - Jyväskylä
Savelankatu 1 JYVÄSKYLÄ, 40700 Jyväskylä #10850744
Uudisrakennus valmistumassa Jyväskylän Savelaan.
Osoitteeseen Savelankatu 3 nouseva rakennus tarjoaa modernit ja energiatehokkaat puitteet monen eri yrityksen tarpeisiin. Toimitilat soveltuvat erinomaisesti kevyeen tuotantoon sekä varastointiin. Toimitilat ja sijainti palvelevat hyvin myös esim. teknisen erikoiskaupan tarpeita.
Savelankatu 3 sijaitsee n. 3 kilometrin päästä Jyväskylän keskustasta. Alueella on erinomaiset julkisen liikenteen yhteydet.
Savela on kehittyvä yrityskeskittymä, jossa on monipuolista liiketoimintaa ja palveluita.
Osoite
Savelankatu 1 JYVÄSKYLÄ, 40700 Jyväskylä
Tilatyyppi
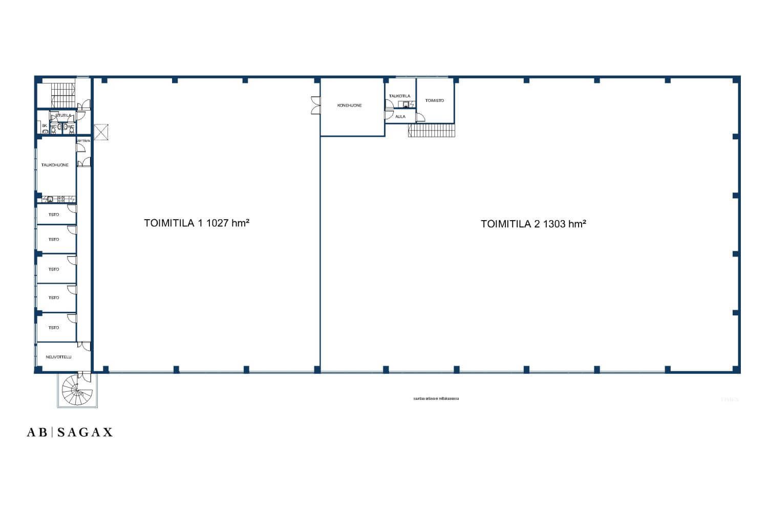
Toimistotilaa
2331 m2
Tuotantotilaa
2331 m2
Yhteensä
2331 m2
Vapautuu
Kysy
Ota yhteyttä
Pyydä lisätietoa
