Vuokrataan toimistotilat - Tampere
Eteläpuisto 2 C TAMPERE, 33200 Tampere #10850743
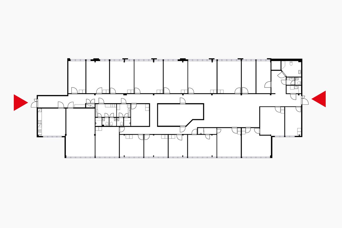
Vuokrattavissa toimistotilaa Tampereen Klingendahlista. Kiinteistössä on vapaana 5. kerroksesta toimistokokonaisuus, jonka kokonaispinta-ala on 591 m2;. Tilat ovat siistit ja vasta remontoidut, ja huoneet ja ikkunat ovat korkeita, minkä vuoksi luonnonvaloa pääsee mukavasti sisätiloihin. Vuokrattavana 4 autohallipaikkaa. Kadun varressa, talon edessä, on maksullisia kadunvarsipaikkoja.
Tampereen Klingendahl. Lounaspaikkoja löytyy lähistöltä runsaasti. Kadun varressa talon edessä on maksullisia kadunvarsipaikkoja.
Osoite
Eteläpuisto 2 C TAMPERE, 33200 Tampere
Tilatyyppi
Toimistotilaa
591 m2
Kulkuyhteydet
Juna-asemalle n.1,5 km, lentokentälle 16,7 km.
Vapautuu
Kysy
Ota yhteyttä
Pyydä lisätietoa
