Vuokrataan toimistotilat - Espoo
Kutojantie 7, 02630 Espoo #10850731
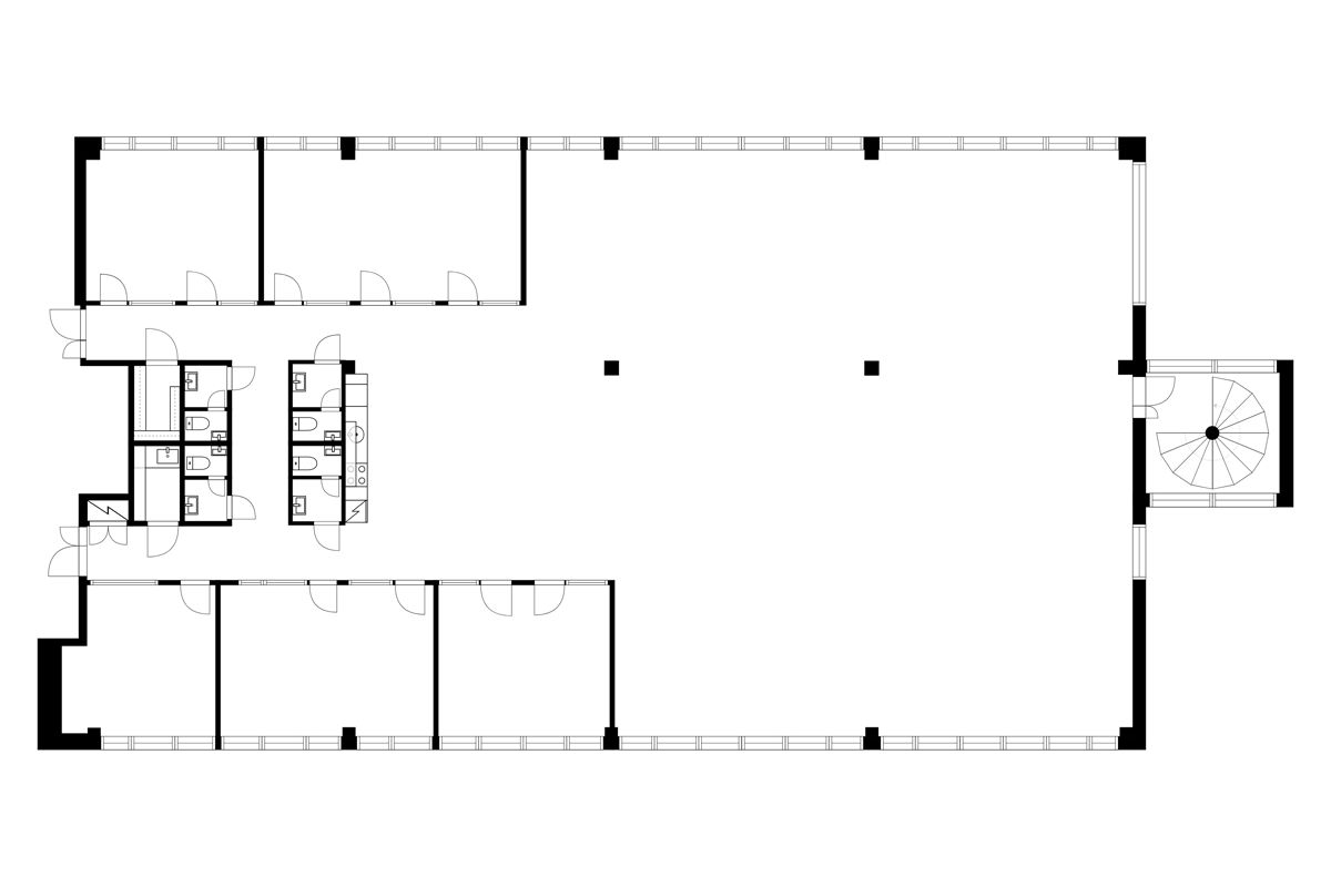
Vuokrattavana valoisa ja siisti toimistotila kiinteistön ensimmäisessä kerroksessa. Kiinteistön ylimmässä kerroksessa on vuokrattavissa saunaosasto neuvottelutiloineen. Espoon Kiloon on hyvät kulkuyhteydet ja Keran rautatieseisakkeelle on matkaa vain noin 500 m.
Kutojantie 7 on siisti ja hyvin toimiva toimistokiinteistö, josta löydät edustavat ja edulliset toimistotilat yrityksellesi. Se sijaitsee lyhyen kävelymatkan päässä Keran juna-asemalta. Tilat vuokrataan joustavin sopimusehdoin ja muokataan tarvittaessa käyttäjän tarpeita vastaaviksi. Tilat voidaan toteuttaa joko avo- tai huonekonttorina tai näiden yhdistelmänä.
Kiinteistössä on työpistekohtainen lämmitys ja jäähdytys ja ajanmukaiset tietoliikenneyhteydet Cat5 (ADSL). Ylimmässä kerroksessa sauna- ja neuvottelutilat. Talon pysäköintihallissa ja pihalla on vuokrattavissa lämmityspistokkeellisia pysäköintipaikkoja. Vieraspaikat sijaitsevat pääsisäänkäynnin edessä. Työmatkapyöräilijöiden on mahdollista hyödyntää talon pohjakerroksessa sijaitsevia pesu- ja pukeutumistiloja. Kadun vastakkaisella puolella sijaitseva lounasravintola tarjoilee buffetlounaan arkisin. Alueella on myös muita ravintoloita.
