Vuokrataan liiketilat - Lahti
Aleksanterinkatu 25 LAHTI, 15140 Lahti #10850724
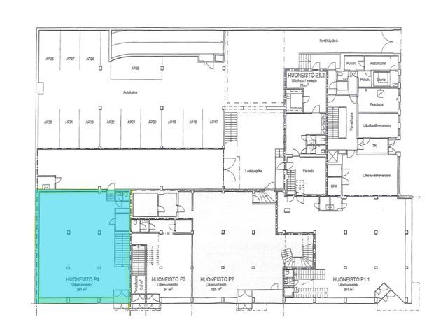
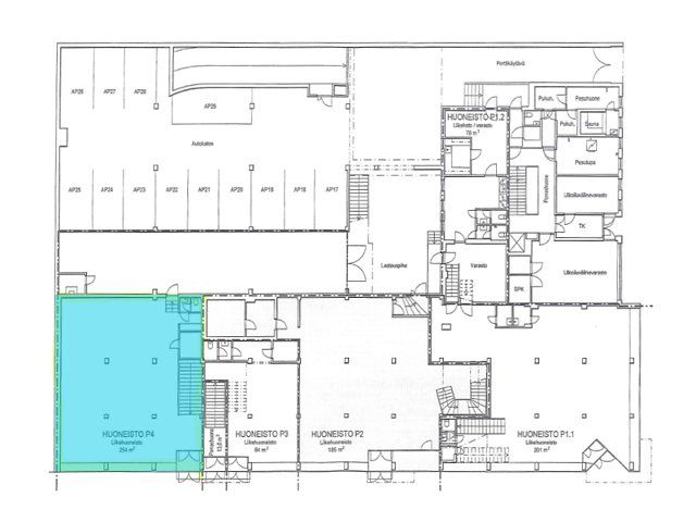
Siisti katutason liiketila hyvällä sijainnilla Lahden keskustassa, kauppakeskus Trioa vastapäätä. Myymälätilassa isot näyteikkunat kadulle. Tila ei sovellu ravintolakäyttöön. Liiketilan alakerrassa on 431 m2 varastokäyttöön sopiva tila.
Liiketilojen vuokraus ja tiedustelut: C&W Retail Services, puh. 010 836 8418, retail.fi@cushwake.com.
Lahden keskustan liikekiinteistö pääkadulla; Aleksintornia ei pysty näkemättä ohittamaan. Matka rautatieasemalle taittuu kävellen. Alueella on yleisiä pysäköintilaitoksia palvelemassa omalla autolla liikkuvia.
Osoite
Aleksanterinkatu 25 LAHTI, 15140 Lahti
Tilatyyppi
Liiketilaa
254 m2
Kulkuyhteydet
Juna-asema 1,1 km, lentoasema 98,2 km.
Vapautuu
Kysy
Ota yhteyttä
Pyydä lisätietoa
