Vuokrataan toimistotilat - Helsinki
Vattuniemenranta 2, 00210 Helsinki #10850722
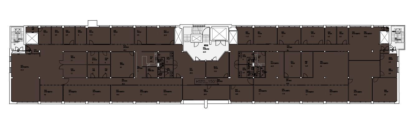
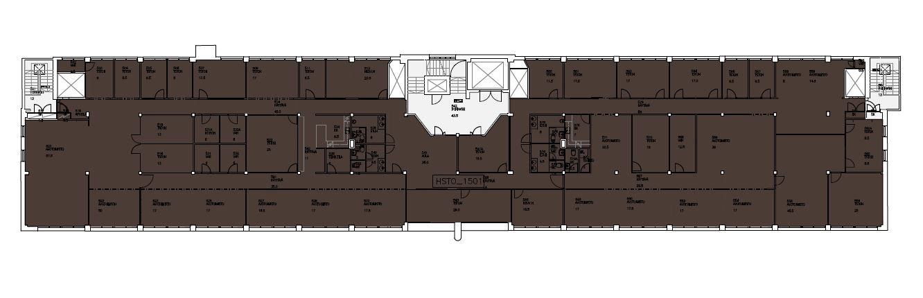
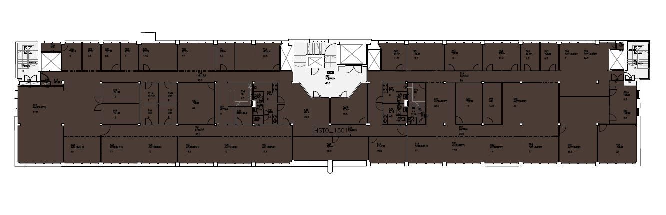
Koko ylimmän, viidennen kerroksen kattava tehokas toimistotila. Huoneisto koostuu erikokoisista työhuoneista sekä avotilasta. Jäähdytys.
Helsingin Vattuniemenranta 2 on viihtyisä toimistorakennus kauniilla paikalla meren rannassa Lauttasaaressa. Kohteen tilat ovat joustavasti muokattavissa vuokralaisen tarpeen mukaan ja osassa kohteen tiloista on ihana merinäköala. Kiinteistön vuokralaisten käytössä on oma lounasravintola, jonka lisäksi lähialueelta löytyy kattava valikoima lounasravintoloita jokaiseen makuun. Lähimmälle metroasemalle on matkaa vajaa kilometri.
Osoite
Vattuniemenranta 2, 00210 Helsinki
Tilatyyppi
Toimistotilaa
1111 m2
Kulkuyhteydet
Länsimetron lähimmälle asemalle 900 m. Omalla autolla tulijoita palvelee kiinteistön oma pysäköintialue. Bussipysäkki kävelymatkan päässä.
Vapautuu
Kysy
Rakennusvuosi
1955
Liitetiedostot
Ota yhteyttä
Pyydä lisätietoa
