Vuokrataan toimistotilat - Helsinki
Hiomotie 32, 00380 Helsinki #10850715
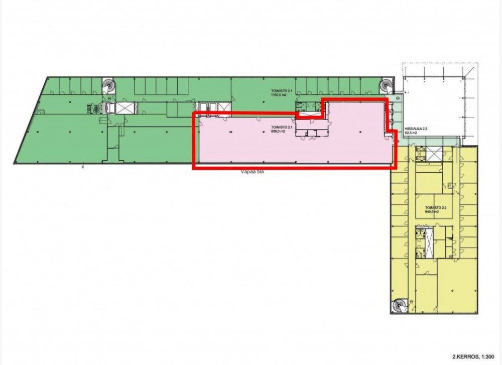
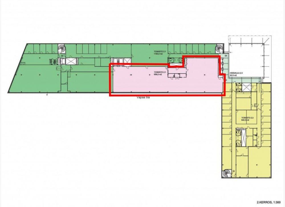
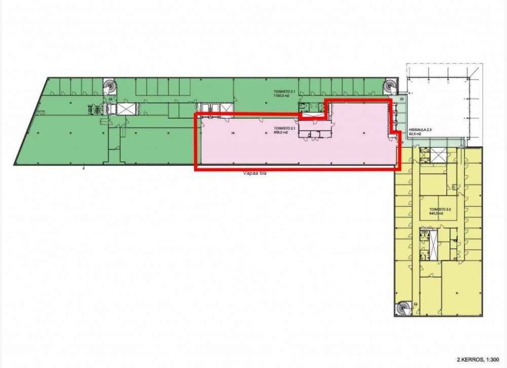
Vuokrattavana 2. kerroksen 763 m2 toimistotila. Tila soveltuu toimistotilaksi tai kevyeeseen eletroniikkatuotantoon. Tilassa on ESD-lattia. Tilaan lastausmahdollisuus suoraan lastaustilasta, johon kaksi lastaustaskua. Tilassa useita jäähdyttimiä katossa.
KOy Strömberginaukio on muuttanut nimeään ja on nyt Pitäjänmäen Voltti. Rakennus valmistui vuonna 1999 ja se pistettiin täysin uuteen uskoon vuonna 2020.
Rakennuksen palvelut kattavat kaiken neuvottelukeskuksesta aina ravintola- ja catering-palveluihin sekä kuntosaliin ja edustussaunaan. Talon ensimmäisessä kerroksessa toimii täysin uudistettu 170 asiakaspaikan lounasravintola Kuohu, jonka palvelut tarjoaa Antell Oy. Lounastarjoilun lisäksi ravintola toimittaa tarvittaessa kokoustarjoiluja ensimmäisen kerroksen neuvottelutiloihin, ylimmän kerroksen saunalle sekä tarvittaessa myös vuokralaisten omiin tiloihin.
Alueella on hyvät julkisen liikenteen palvelut. Pitäjänmäen ja Vihdintien bussilinjat sekä Valimon junaseisake mahdollistavat sujuvan kulkemisen alueelle ja raidejokerin valmistuminen parantaa liikenneyhteyksiä entisestään. Kiinteistössä on lisäksi yli 200 autopaikan pysäköintihalli ja sisäänkäynnin edustalla 24 vieraspaikkaa.
