Vuokrataan toimistotilat - Espoo
Ahventie 4, 02170 Espoo #10850707
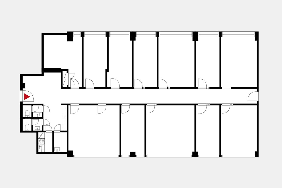
Vuokrataan 5. kerroksen siisti toimistotila. Kohde sijaitsee hyvällä paikalla Länsiväylän varrella. Ahti Business Parkissa vuokralaisille on tarjolla kattavat palvelukokonaisuudet.
Ahti Business Park. Länsiväylälle näkyvä toimistokiinteistö, joka on ollut Haukilahden maamerkki vuodesta 1978 alkaen. Talossa on lounasravintola sekä runsaasti vuokrattavia autopaikkoja kahdessa tasossa. Hyvät yhteydet. Remontoidut tilat, joissa saatavissa peruspalvelut (tietoliikenne-, siivous- ja aulapalvelut). Tilat on helposti jaettavissa ja yhdistettävissä kevyiden väliseinien ansiosta. Kohteessa myös vuokrattavia neuvottelutiloja sekä viihtyisä saunatila (max. 15 hengelle) kiinteistön 7. kerroksessa. Pysäköintipaikkoja parkkihallissa ja ulkokannella.
