Vuokrataan toimistotilat - Espoo
Sinikalliontie 9, 02630 Espoo #10850703
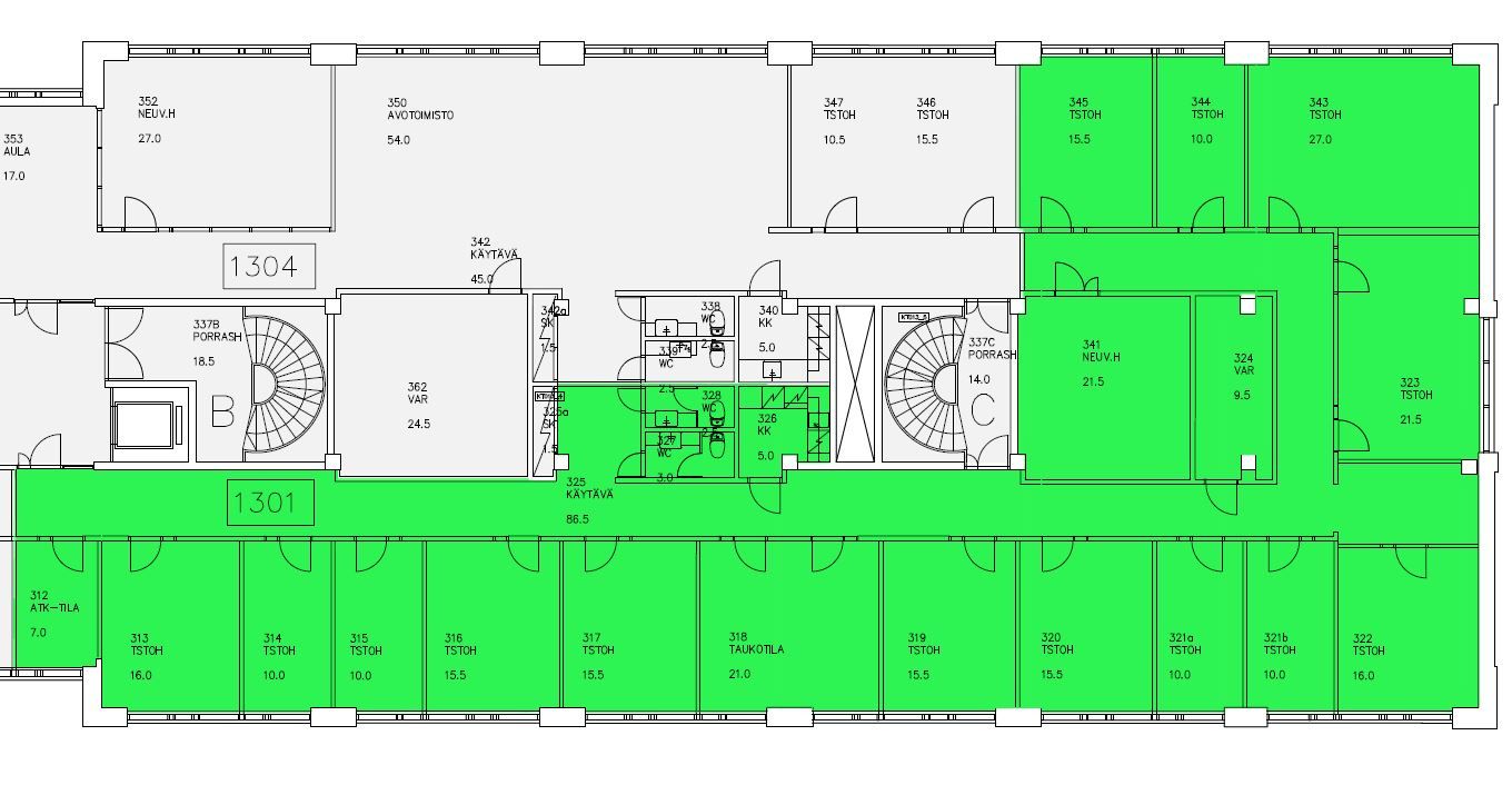
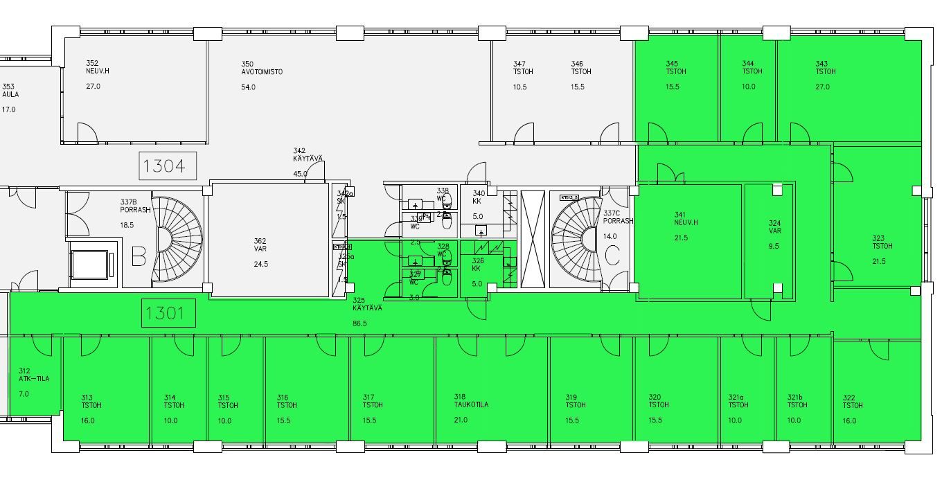
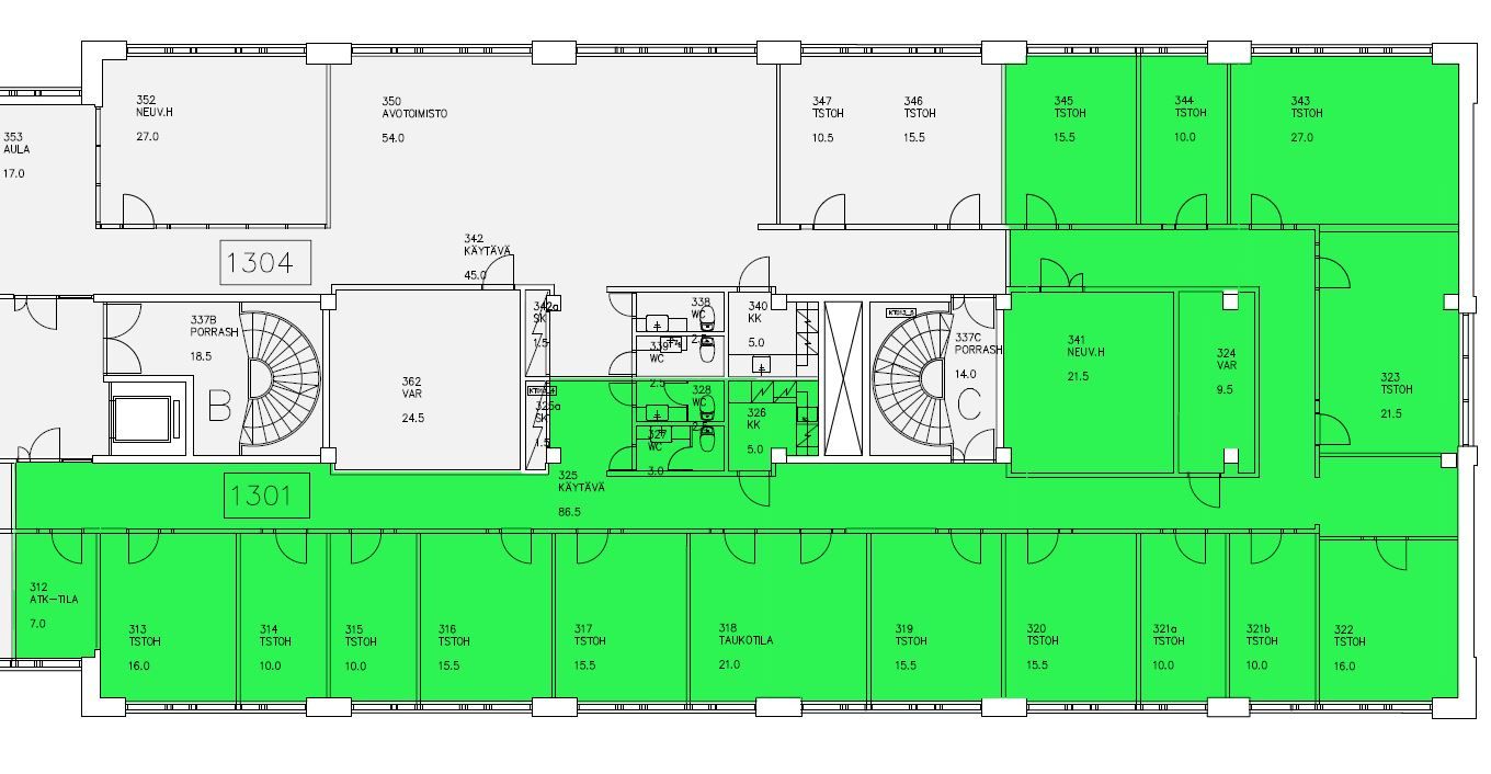
Vuokrattavana peruskuntoinen huonetoimistotila. Pintaremontilla edullista ja muunneltavaa toimistotilaa. Huoneistossa on oma neuvottelutila, sosiaali- ja taukotilat. Tila on muokattavissa asiakkaan tarpeen mukaan. Huoneisto 1301.
Helposti saavutettava toimistokohde suositulla Sinimäen työpaikka-alueella. Kohteesta löytyy erikokoisia tiloja niin pienille kuin suuremmillekin yrityksille. Rakennuksen tilat ovat pääosin huonetoimistoja, jotka on muunneltavissa avotilaksi tai remontoitavissa vuokralaisen yksilöllisten tarpeiden mukaan. Talon välittömässä läheisyydessä palvelee viihtyisä lounasravintola. Parkkipaikalla kiinteistön edessä on runsaasti pysäköintipaikkoja.
