Vuokrataan toimistotilat - Helsinki
Lautatarhankatu 10, 00580 Helsinki #10850680
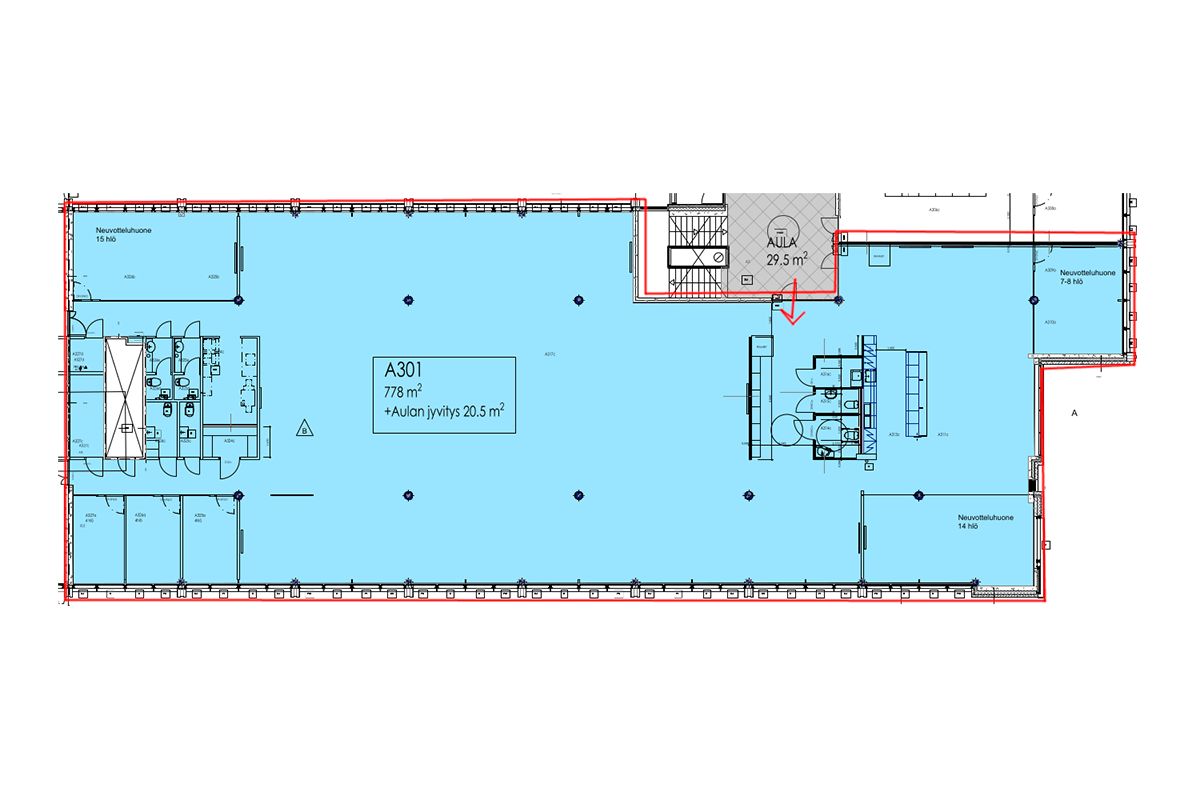
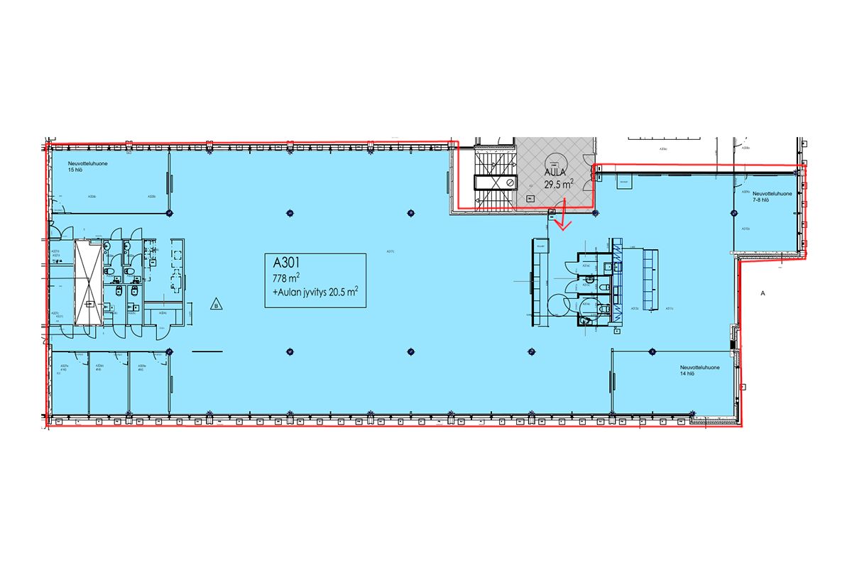
Vuokrataan vuonna 2019 täysin remontoitu toimistotila 765,5 m² (+ aulajyvitys 20,5 m²), joka on pääosin avotilaa. Hieno aula ja keittiö, toimivat neuvotteluhuoneet (3 x 2-4 hlö, 1 x 7-8 hlö, 1 x 14 hlö, 1 x 15 hlö). Ikkunoista näkymät Suvilahteen ja kiinteistön sisäpihalle.
Moderni korkean turvallisuustason toimistokiinteistö loistosijainnilla metroaseman välittömässä läheisyydessä Kalasatamassa. Vuonna 2002 valmistunut Trooli-kortteli muodostuu kolmesta toisiinsa liittyneestä kiinteistöstä, joiden keskelle jää viihtyisä sisäpiha.
Työarjen sujuvuutta helpottavat Troolin tarjoamat laadukkaat ravintola-, kahvila- ja cateringpalvelut. Tunnelmallinen aula tarjoaa edustavat puitteet asiakkaiden vastaanottamiselle ja pikapalavereille kahvikupin äärellä kollegoitten kesken. Ammattitaitoinen aulapalveluhenkilökunta opastaa vieraita, avustaa käyttäjiä sekä huolehtii kohteen turvallisuudesta. Vuokrattavat neuvottelutilat sijaitsevat aulan vieressä. Monipuolinen kuntosali ja liikuntatila sijaitsevat kiinteistön kellaritiloissa, jossa ovat myös sosiaalitilat suihkuineen sekä pyöräsuoja työmatkapyöräilijöitä varten. Pysäköinti sujuu kätevästi kiinteistön omassa autohallissa, jossa on varaukset myös sähköautojen latauspaikoille.
