Vuokrataan muut tilat - Helsinki

Hämeentie 19, 00500 Helsinki #10850666

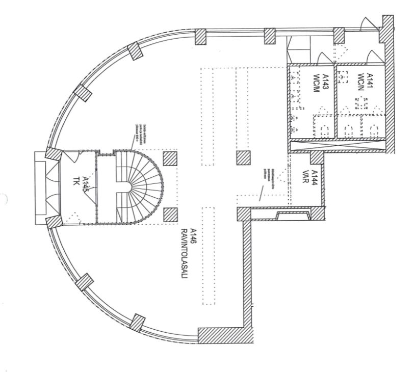
Vuokrattavana 540 m2 ravintolatila, jossa on täysi ravintolatekniikka. Tilassa toimii tällä hetkellä Sushibar + Wine.

Tila jakautuu kahteen kerrokseen:
1. kerros 175 m² – valoisa ja näyttävä ravintolatila katutasossa, joka tarjoaa erinomaisen näkyvyyden.
Kellarikerros 365 m² – monipuolinen tila, jota voi hyödyntää esimerkiksi lisäasiakastilana, apukeittiönä, henkilökunnan tiloina tai varastona.

Sijainti Hämeentiellä tarjoaa erinomaisen näkyvyyden ja hyvät kulkuyhteydet.

Liiketilojen vuokraus ja tiedustelut: C&W Retail Services, puh. 010 836 8418, retail.fi@cushwake.com.

Täysin saneerattu funkiskiinteistö. Väinö Vähäkallion suunnittelema rakennus on valmistunut vuonna 1933 OTK:n hallintorakennukseksi, jota on laajennettu vuonna 1964 koskien rakennuksen B-osaa.

Talo on varustettu modernilla talotekniikalla ja it-yhteyksillä; koneellinen tulo- ja poistoilmanvaihto, kulunvalvonta, jäähdytys, uudet pintamateriaalit, tasokkaat wc- ja keittiötilat sekä Cat6-tasoinen yleiskaapelointi (myös kuituyhteys). Persoonallinen kiinteistö, jossa mm. toimivat pater-hissit. Kiinteistössä mm. aulapalvelu ja täysin uudistettu lounasravintola, jonka yhteydessä catering-mahdollisuus. Erillistä sopimusta vastaan käytettävissä neuvottelutiloja, kuntosali ja suihkutilat. Myös varastotilaa vuokrattavissa.

Osoite
Hämeentie 19, 00500 Helsinki
Tilatyyppi
Muuta tilaa
175 - 540 m2
Kulkuyhteydet
Metroasemalle alle 200 m, raitiovaunu- ja bussipysäkille 100 m, juna-asemalle 2,5 km, lentokentälle 16,7 km.
Vapautuu
Kysy
Rakennusvuosi
1933
Ota yhteyttä

Cushman&Wakefield

C&W Retail Services
Näytä puhelinnumero +358108368418

Pyydä lisätietoa

Kohteesta Hämeentie 19, Helsinki

 

B2B palvelut

LASTAUSRATKAISUT

Mainos
Lastauksien ratkaisut tehokkaammin ja turvallisemmin

MARKKINOINTI

Tavoita oikea kohderyhmä!