Vuokrataan toimistotilat - Helsinki
Ruoholahdenkatu 14, 00180 Helsinki #10850654
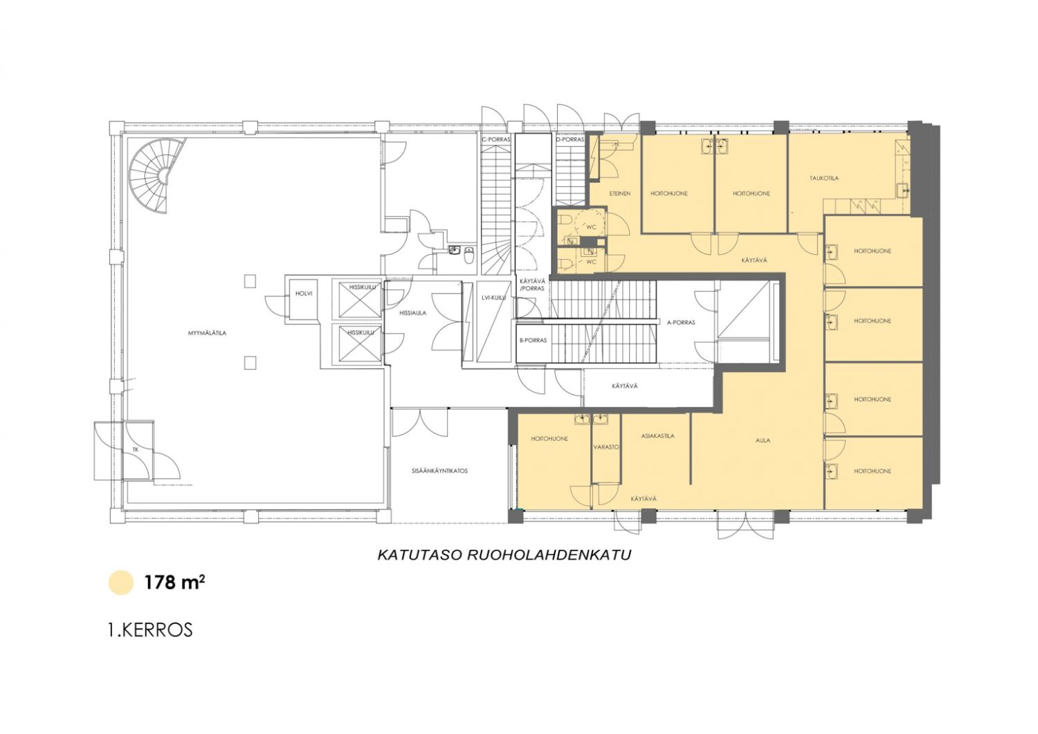
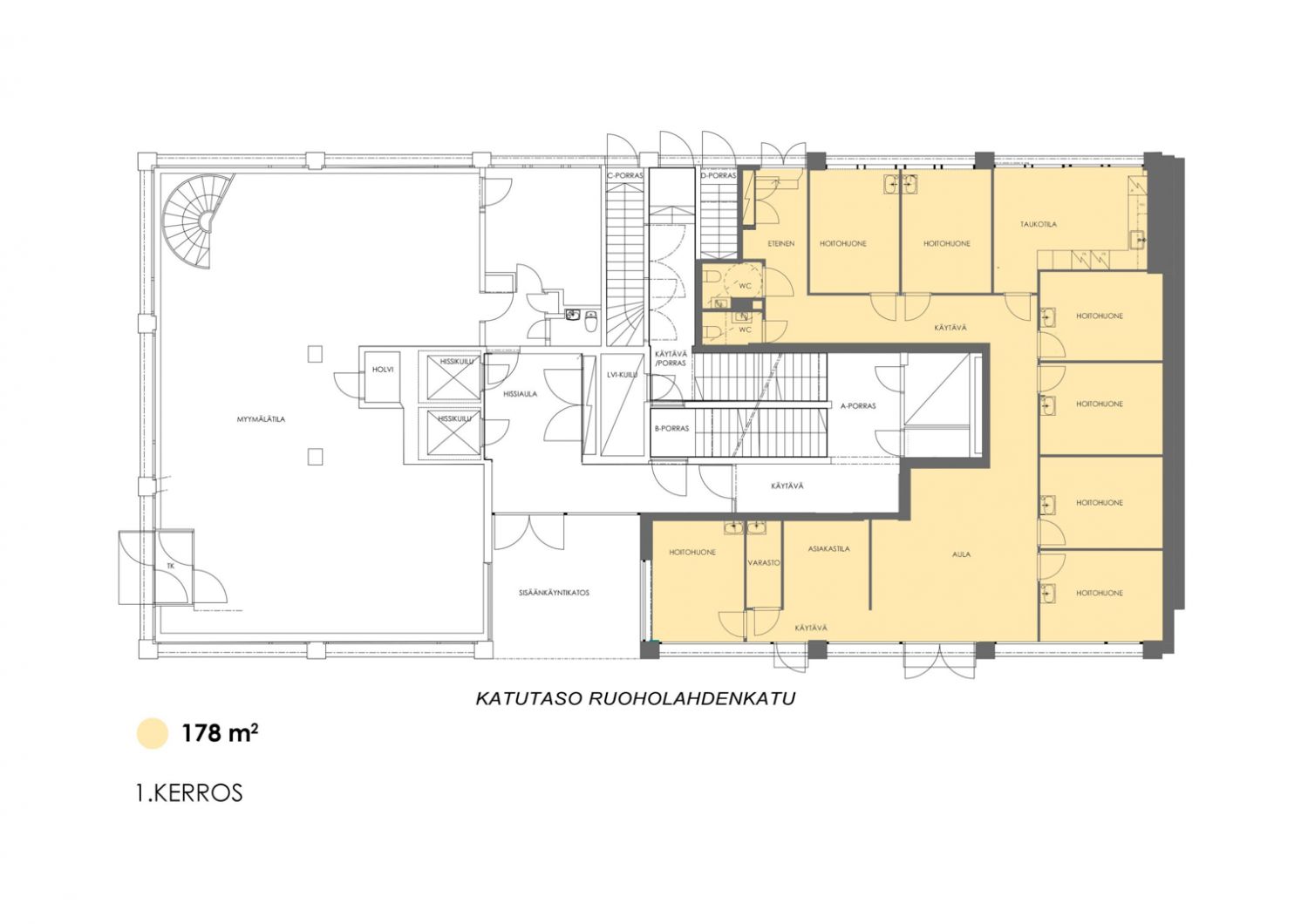
Vuokrattavana katutason valoisa 178 m2 liiketila vilkkaan Ruoholahdenkadun varrella. Liiketilassa on taukotilan ja vastaanottoaulan lisäksi seitsemän vesipisteellistä vastaanottohuonetta, joiden ansiosta tila soveltuu erityisen hyvin esimerkiksi erilaiseen kauneudenhoito- ja hyvinvointialan liiketoimintaan.
Sisävalokuvat ovat esimerkkejä ja havainnekuvia kiinteistön tiloista.
Ruoholahdenkatu 14 on tyylikäs toimistotalo Helsingin Kampissa, aivan Lastenlehdon puiston tuntumassa. Perinteikkääseen 60-luvun kiinteistöön on remontoitu moderneja ja muunneltavia toimitiloja, jotka täyttävät vaativammatkin tarpeet. Näissä toimistoissa on hyvää arjen fiilistä runsain mitoin, ikkunoista aukeaa avarat näkymät naapuruston puistoihin ja kaupungin kattojen ylle. Rakennuksen aikakauden tyyliin juuri remontoidut aulatilat toivottavat tulijan tervetulleeksi heti ulko-ovesta sisään astuttaessa.
Alue tarjoaa erinomaiset liikenneyhteydet, jotka tekevät arjesta helpompaa ja työmatkoista sujuvampia. Lähimmät julkisen liikenteen pysäkit sijaitsevat aivan talon edessä, ja lähimmälle metroasemalle Kamppiin matkan taittaa alle kymmenessä minuutissa. Työmatkapyöräilijöillä on vain pari polkaisua baanalle ja autollakin saapuva kurvaa Ruoholahdenkadulle helposti suoraan Länsiväylältä.
