Vuokrataan liiketilat - Helsinki
Eteläinen Hesperiankatu 8, 00100 Helsinki #10850637
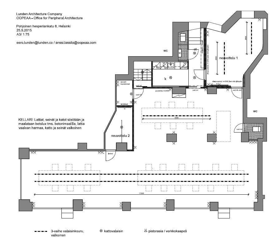
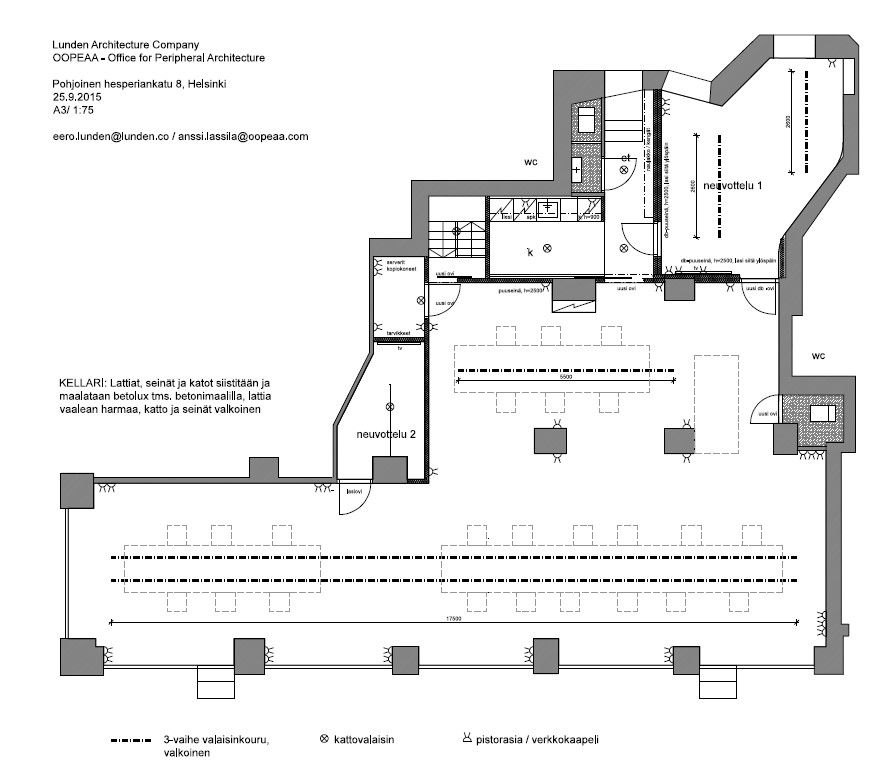
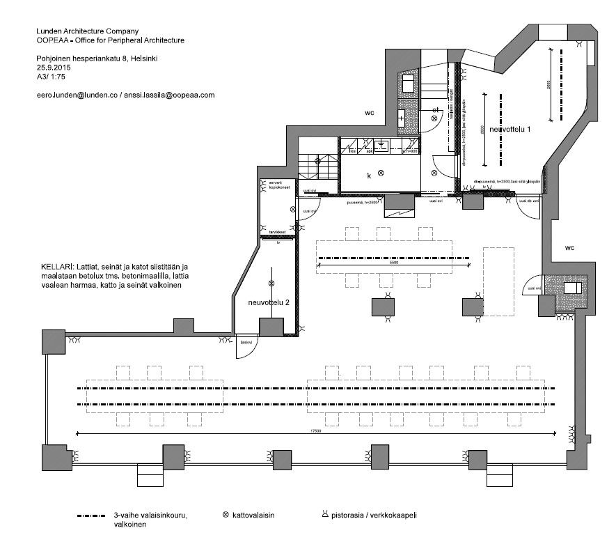
Vuokrattavana valoisa ja edustava katutason 250 m2 myymälä-/liiketila erinomaisella sijainnilla Töölön sydämessä. Tilassa on avara pohjaratkaisu, suuret näyteikkunat kadulle ja runsaasti mahdollisuuksia eri toimialoille. Tilaan on käynti suoraan kadulta, ja sen näkyvyys vilkkaalle Eteläiselle Hesperiankadulle on erinomainen. Hyvät kulkuyhteydet.
Liiketilojen vuokraus ja tiedustelut: C&W Retail Services, puh. 010 836 8418, retail.fi@cushwake.com.
Osoite
Eteläinen Hesperiankatu 8, 00100 Helsinki
Tilatyyppi
Liiketilaa
250 m2
Vapautuu
Kysy
Ota yhteyttä
Pyydä lisätietoa
