Vuokrataan toimistotilat - Helsinki
Eerikinkatu 4, 00100 Helsinki #10850629
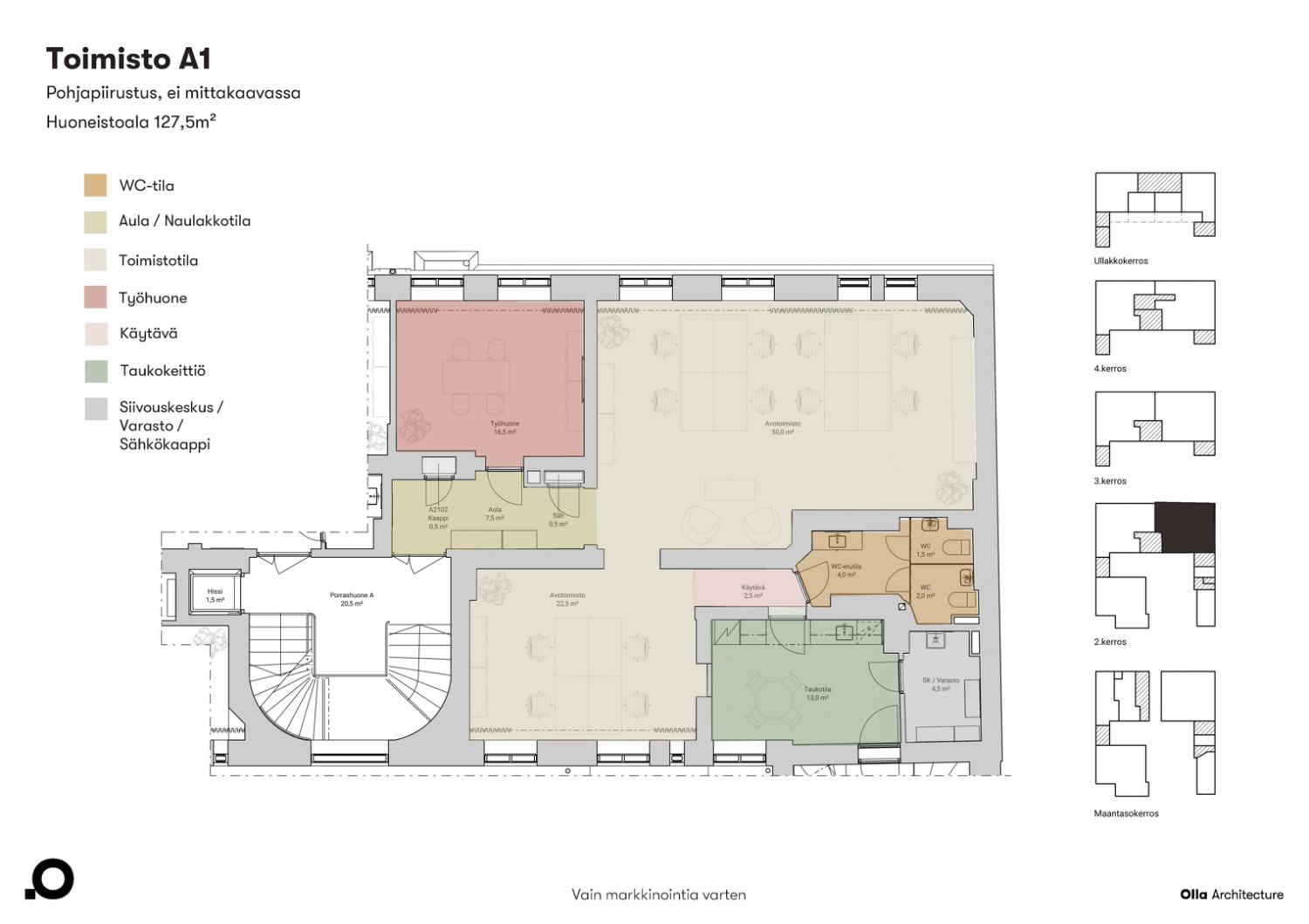
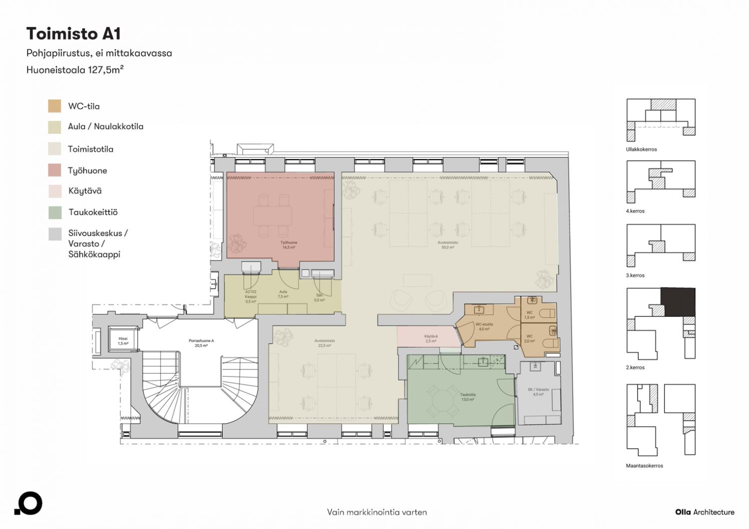
Vuokrattavana 2. kerroksen 127,5 m2 toimistotila. Rakennus valmistunut peruskorjaukseseta 2025. Kaikki tilat remontoitu vanhaan tyyliin ja niissä parkettilattiat. Painovoimainen ilmanvaihto.
Arvokas vanha kiinteistö. Rakennusvuosi 1896, peruskorjattu 2025. Edustava rappukäytävä, jossa hissi. Arkkitehti Theodor Höijer.
Osoite
Eerikinkatu 4, 00100 Helsinki
Tilatyyppi
Toimistotilaa
127 m2
Kulkuyhteydet
Erinomaiset liikenneyhteydet julkisilla. Kiinteistö sijaitsee kävelymatkan päässä Kampin terminaalista ja metroasemasta. Pysäköinti Forumin parkkihallissa. Kiinteistön sisäpihalla muutama paikka.
Vapautuu
Kysy
Rakennusvuosi
1896
Ota yhteyttä
Pyydä lisätietoa
