Vuokrataan liiketilat - Helsinki
Siltasaarenkatu 16, 00530 Helsinki #10850567
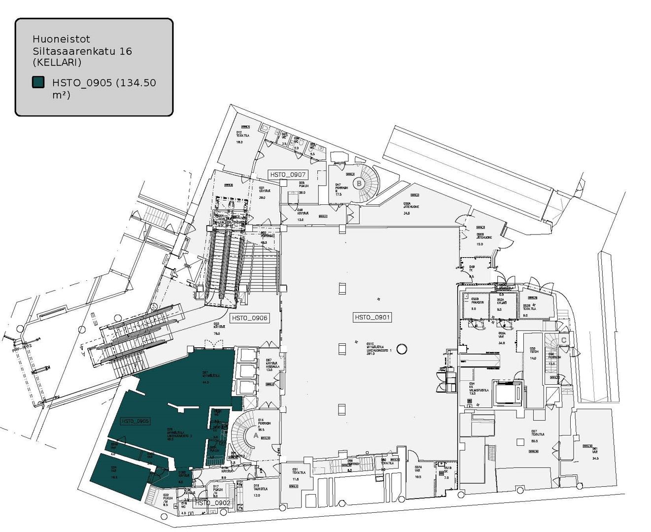
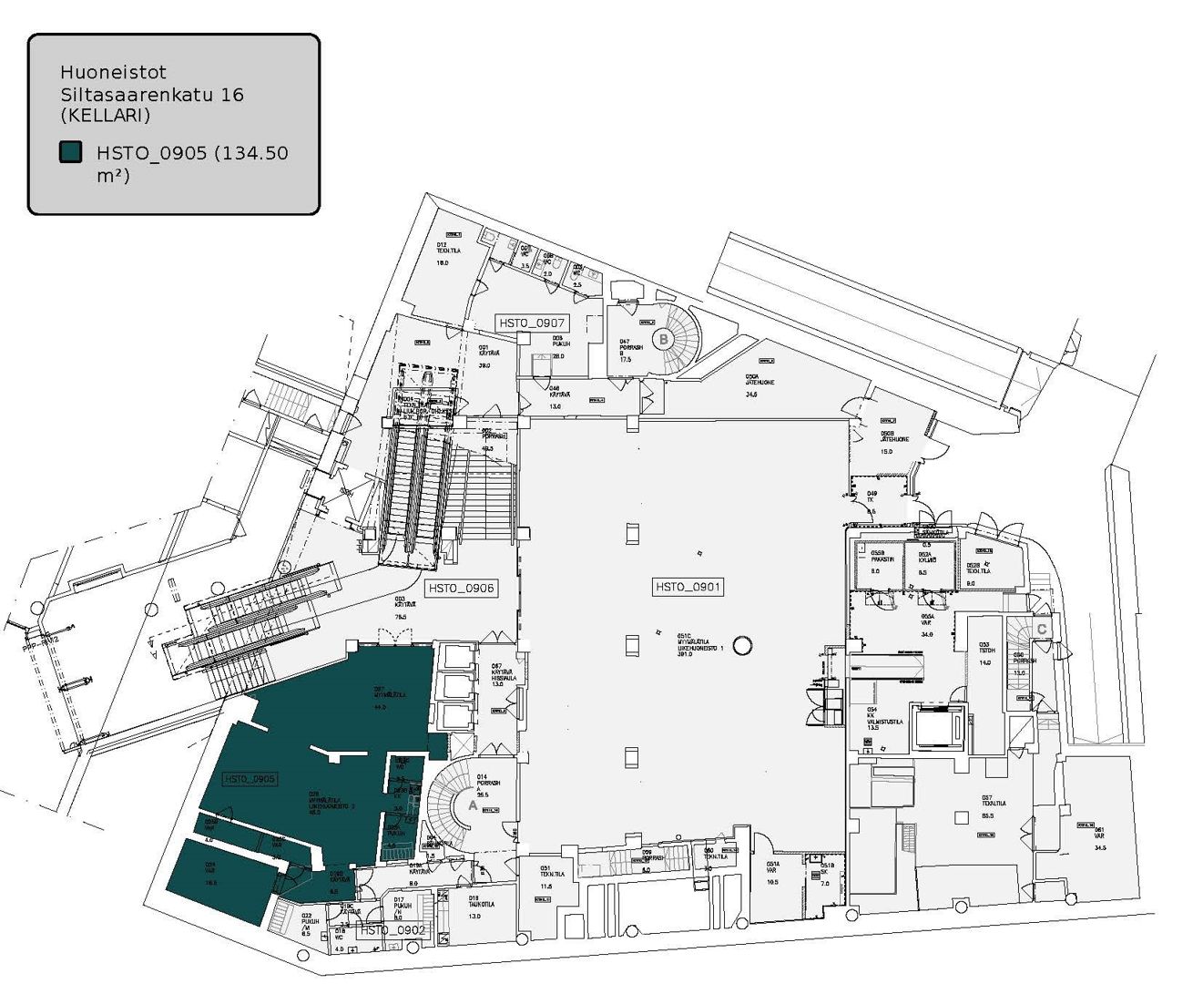
Vuokrattavana liiketila metroon johtavan käytävän varrella, talon pohjakerroksesta. Hyvä liikepaikka metron tuomia asiakasvirtoja hyödyntämään pystyvälle yritykselle. Erinomainen sijainti Hakaniemen torin laidalla.
Liiketilojen vuokraus ja tiedustelut: C&W Retail Services, puh. 010 836 8418, retail.fi@cushwake.com.
Kiinteistö hyvien julkisten yhteyksien päässä Hakaniemen torin laidalla. Metroasema sijaitsee aivan kiinteistön kupeessa ja tulevaisuudessa taloon pääsee kulkemaan sisäkautta suoraan metroasemalta. Metron lisäksi Hakaniemeen on tietenkin erinomaiset kulkuyhteydet myös bussilla. Kiinteistön ympäristössä on tarjolla runsas valikoima erilaisia lounasravintoloita. Läheltä löytyvät myös päivittäistavarakaupat ja muut palvelut. Parkkipaikkoja vuokrattavissa talon omasta parkkihallista.
Raitiovaunu- ja bussipysäkille sekä metroasemalle kullekin 100 m, juna-asemalle 1,2 km, lentokentälle 18 km.
