Vuokrataan toimistotilat - Helsinki
Kaisaniemenkatu 6, 00100 Helsinki #10850556
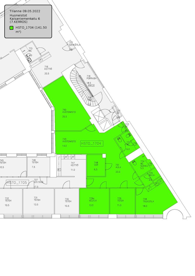
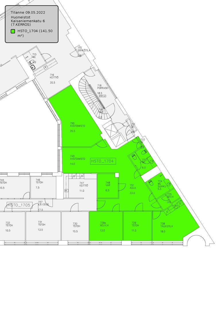
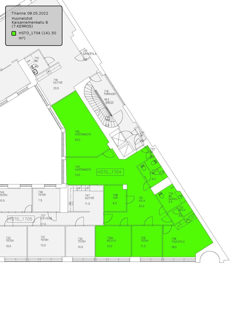
Vuokrattavana seitsemännen kerroksen valoisa huone- ja avotoimistotila. Kiinteistö sijaitsee keskeisellä paikalla Helsingin ydinkeskustan tuntumassa.
Oiva Kallion suunnittelema ja vuonna 1930 valmistunut rakennus Kluuvissa Kaisaniemenkadun ja Vuorimiehenkadun kulmauksessa. Rakennus on näkyvällä paikalla Hakaniemeen johtavan tien varrella erinomaisten julkisten liikenneyhteksien varrella.
Osoite
Kaisaniemenkatu 6, 00100 Helsinki
Tilatyyppi
Toimistotilaa
141 m2
Kulkuyhteydet
Kohde sijaitsee lähellä Helsingin yliopiston metroasemaa (100 m). Rautatietorille ja Elielin aukiolle on lyhyt kävelymatka. Raitiovaunut sekä bussit liikennöivät Kaisaniemenkatua pitkin.
Vapautuu
Kysy
Rakennusvuosi
1930
Liitetiedostot
Ota yhteyttä
Pyydä lisätietoa
