Vuokrataan toimistotilat - Helsinki
Sahaajankatu 24, 00880 Helsinki #10850546
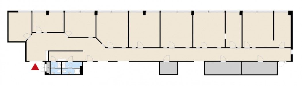
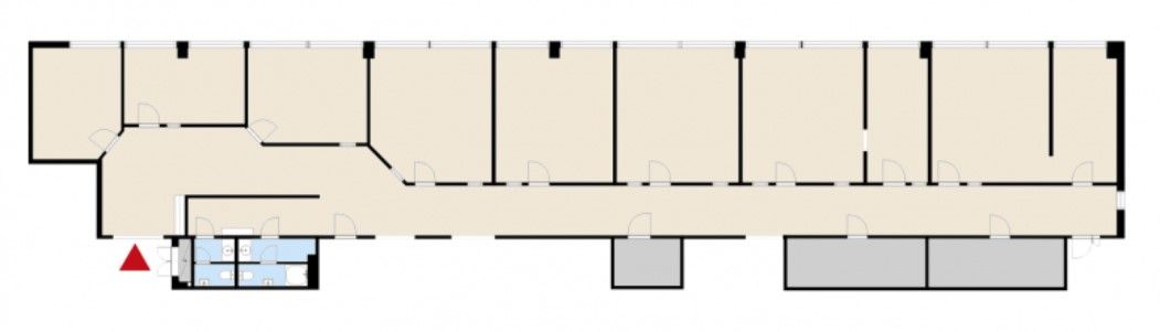
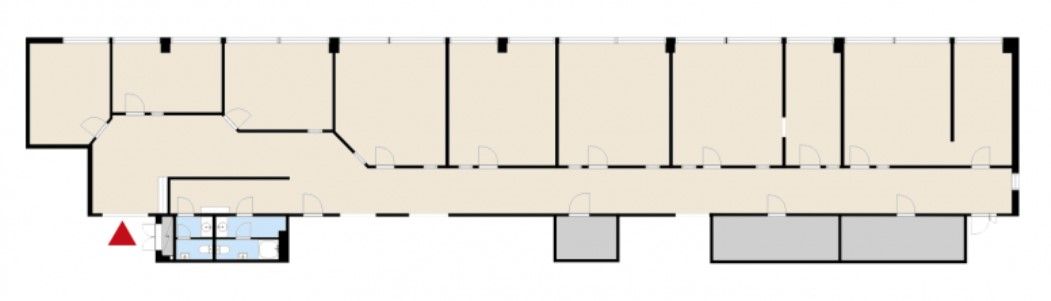
Vuokrattavana remontoitua toimistotilaa, josta pienellä pintaremontilla edullista toimistotilaa. Kohdekiinteistö sijaitsee hyvien kulkuyhteyksien varrella Herttoniemen teollisuusalueella.
Helsingin Sahaajankatu 24 tilat soveltuvat erityisesti teollisuusalan toimijoille, joilla on tarvetta toimisto-, logistiikka- ja tuotantotiloille. Tilat ovat muokattavissa vuokralaisen tarpeen mukaan. Kiinteistöstä löytyy myös tilava tavarahissi.
Osoite
Sahaajankatu 24, 00880 Helsinki
Tilatyyppi
Toimistotilaa
352 m2
Kulkuyhteydet
Kiinteistö sijaitsee Herttoniemessä. Kiinteistön pihalla pysäköintipaikkoja. Bussilla 79 yhteys Herttoniemen sekä Siilitien metroasemille.
Vapautuu
Kysy
Rakennusvuosi
1991
Ota yhteyttä
Pyydä lisätietoa
