Vuokrataan liiketilat - Helsinki
Simonkatu 9, 00100 Helsinki #10850543
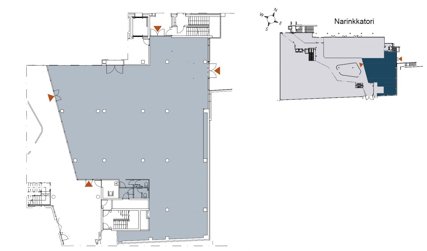
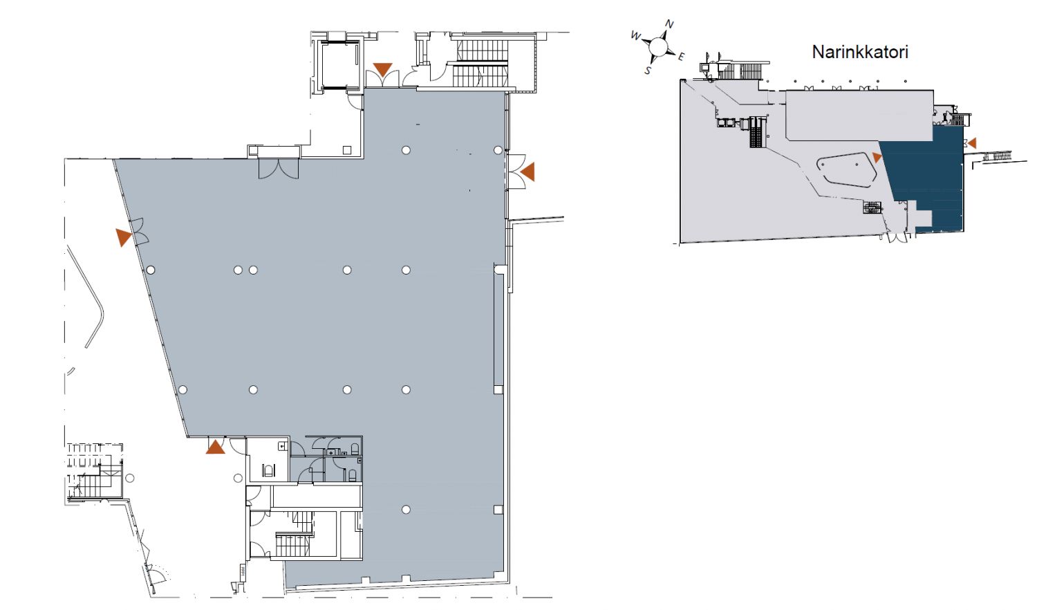
Vuokrataan 425 m2 liiketila, joka sijaitsee Forumin ja Kampin kauppakeskusten yhdistävän vilkkaan kauppakujan keskellä. Tilassa toiminut ennen Danskebank. Simonkentän kauppakujan vilkas ohikulkuvirta tarjoaa erinomaiset mahdollisuudet erilaiselle liiketoiminnalle. Tilassa voi toimia myös arvonlisäveroton toimija kuten lääkäriasema, tila ei kuitenkaan sovellu ravintolatoimintaan tai ruoanvalmistusta edellyttävään käyttöön. Kampin ja Forumin kauppakeskusten läheisyys lukuisine kauppoineen, ravintoloineen ja palveluineen lisäävät kohteen vetovoimaa.
Tila on jaettavissa kahdelle, tilakoot noin 152 m2 ja 266 m2.
Liiketilojen vuokraus ja tiedustelut: C&W Retail Services, puh. 0108368400, retail.fi@cushwake.com.
Helsingin keskustassa sijaitseva Simonkentän Hotellikiinteistö on optimaalisella sijainnilla, vain minuutin kävelymatkan päässä niin Kampin Kauppakeskuksesta kuin Kauppakeskus Forumistakin. Talosta pääsee sisätilojen kautta kävellen suoraan Kampin keskukseen ja Forumiin. Saavutettavuus on erinomainen ja autoilijoita palvelevat keskustan pysäköintilaitokset. Vilkas kauppakuja on uusittu valoisaksi ja kutsuvaksi.
