Vuokrataan toimistotilat - Espoo
Keilaranta 12 D-talo, 02150 Espoo #10850539
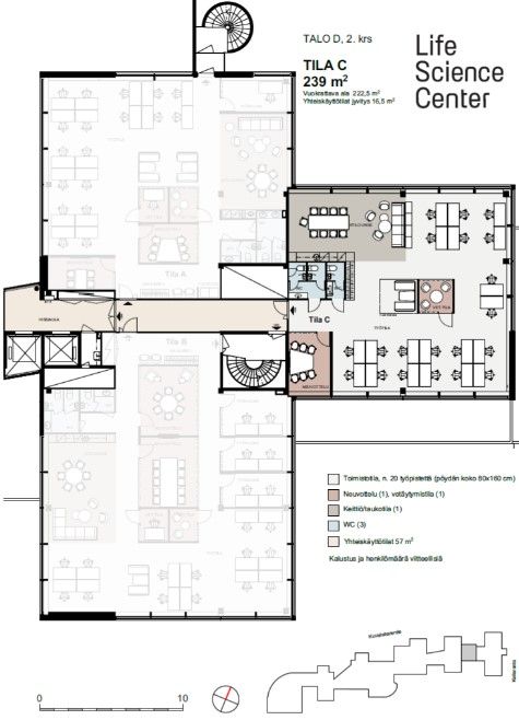
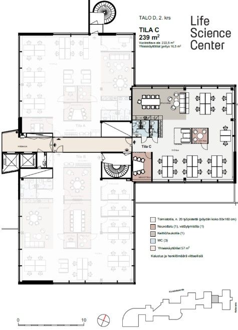
Vuokrattavana tehokas 2. kerroksen tila merinäköalalla. Ilmoituksen esimerkkipohjakuvan tilaratkaisu on muokattavissa käyttäjän toiveiden ja tarpeiden mukaisesti. Avarassa tilassa on hyvin käytetyt neliöt ja merinäköala. Lisäksi tilassa on oma käytännöllinen keittiönurkkaus.
Life Science Center Keilaniemen D-talo.
Life Science Center Keilaniemessä on viisi 7-11 -kerroksista toimitaloa ja niiden palveluihin kuuluvat mm. kaksi ravintolaa, catering-palvelut, neuvottelu- ja edustustilat, huippunopeat tietoliikenneyhteydet sekä aulapalvelu oheispalveluineen. Myös parturi-kampaamo, pesulapalvelu, hammaslääkäri, hieroja sekä korkeatasoinen kuntokeskus. Kaksi aulavastaanottoa ja vieraiden sisäänkäyntiä. Jokaisessa rakennuksessa lisäksi omat sosiaalitilat suihkuineen, jonka ansiosta pyöräily ja vaikka kuntosalilla käynti työpäivän yhteydessä onnistuu kätevästi.
