Vuokrataan muut tilat - Helsinki
Siltasaarenkatu 10, 00530 Helsinki #10850535
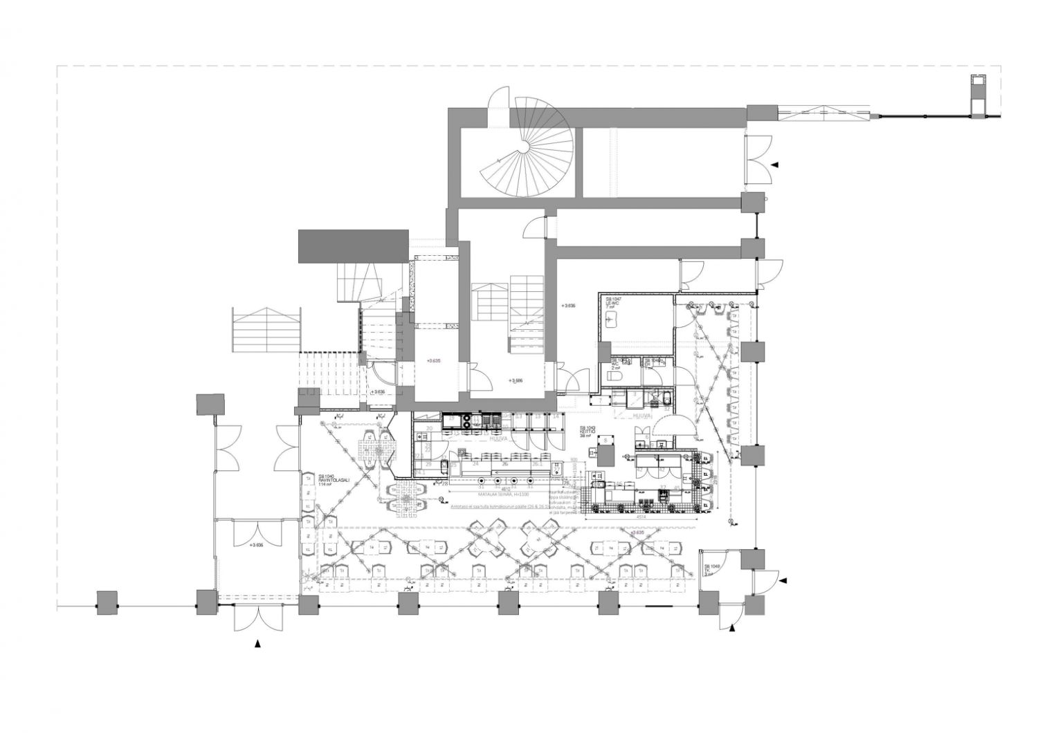
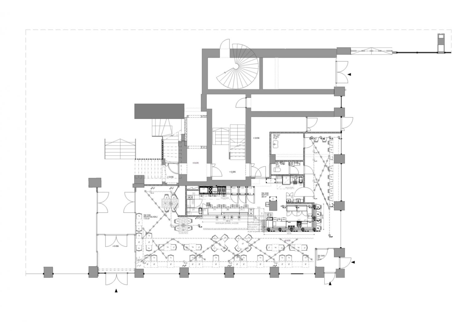
Vuokrattavana upea 159 m² ravintolatila vastasaneeratussa Siltasaari 10:ssä. Tämä katutason liiketila tarjoaa erinomaiset puitteet ravintolatoiminnalle, ja sen suuret ikkunat tuovat runsaasti luonnonvaloa ja näkyvyyttä kadulle. Kadulle saa myös terassin. Viereen avautuu huippusuosittu ravintola BasBas, mikä vahvistaa alueen vetovoimaa.
Tilassa on tilavat ja modernit puitteet, jotka sopivat monenlaiseen ravintolatoimintaan. Loistava sijainti, hyvät kulkuyhteydet ja näkyvä sijainti tekevät tästä liiketilasta erittäin houkuttelevan vaihtoehdon.
Liiketilojen vuokraus ja tiedustelut: C&W Retail Services, puh. 0108368400, retail.fi@cushwake.com.
Siltasaari 10 -hanke. Siltasaari 10 puhaltaa elämää Hakaniemeen. Siltasaari 10 on sekoitus luovia yrityksiä, startupeja, kolmannen sektorin toimijoita, jaettua työtilaa ja huippumodernia, energiatehokasta toimisto-arkkitehtuuria. Tyylikäs sisäänkäynti toimistoihin ja ravintolatiloihin kulttuurihistoriallisesti arvokkaasta Siltasaarenkatu 8-10 kiinteistöstä. Kohde tarjoaa laadukasta toimistotilaa, jossa palvelut saavutettavissa kuivin jaloin kohteen 2.kerroksen toiminnallisen sydämen kautta. Katutasossa PT-kauppa, retail-tilaa sekä kahviloita ja ravintoloita. 2. kerroksessa laadukas ravintola-keskittymä, toimistojen welcome desk, yhteiskäyttöisiä neuvottelu-, tapahtuma- ja projektityötiloja sekä co-working alue. Laadukkaat ja helppokäyttöiset pyörävarastot sekä sosiaalitilat. Autopaikkoja kahdessa kellarikerroksessa. Toimistotilat ovat jaettavissa pienempiin yksiköihin tai yhdistettävissä isommiksi kokonaisuuksiksi joko samaan tasoon tai sisäportaalla kerroksien välillä. Yhteen tasoon saatavilla jopa 2855 m2 ja 317 työpistettä. Vuokrattavaa toimistotilaa yhteensä yli 16.000 m2. Kohteen saneeraus on valmistunut alkuvuonna 2022 historiaa ja ympäristöä kunnioittaen.
