Vuokrataan toimistotilat - Helsinki
Urho Kekkosen katu 3-7, 00100 Helsinki #10850530
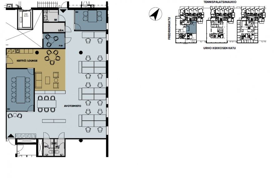
Näyttävä 226 m2 toimisto paraatipaikalla aivan Kampin ytimessä. Tila sijaitsee Kampintornin 6. kerroksessa.
Aivan Helsingin ytimessä sijaitsevat Trigoran toimitilat. Trigora on kiinteä osa Helsingin keskuksen näkyvää maamerkkiä, Kampin keskusta, josta löytyy lähi- ja kaukoliikenteen linja-autoterminaali ja metroasema sekä yli sata kauppaa, ravintolaa ja muuta palvelua. Trigoran kolme vaikuttavaa tornia sisältävät yhteensä lähes 12000m2 toimitilaa.
Trigorassa on laaja valikoima erikokoisia ja -mallisia toimistoja. Kaikki tilat ovat korkeita ja avaria niissä on koko kerroksen kokoiset ikkunat. Korkeatasoinen tekninen varustelu kattaa esimerkiksi Cat6-kaapeloinnin sekä tehokkaan ilmanvaihdon. Toimitilat ovat helposti muunneltavissa muuttuvien tarpeiden mukaisesti. Toimistotiloista on kulku sisäkautta Kampin keskuksen ja Forumin pysäköintihalleihin.
