Vuokrataan liiketilat - Helsinki
Katajanokanlaituri 4, 00130 Helsinki #10850529
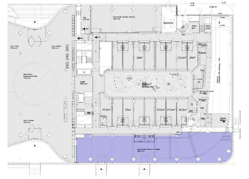
Katutason merenpuoleinen liiketila (pohjakuvassa väritetty alue), joka sopisi hyvin esimerkiksi showroomiksi hienojen maisemien ansiosta. Huom. tilaan ei ole tehty taloteknisiä varauksia ravintola-/kahvilatoiminnalle. Kiinteistö valmistunut kesällä 2024 ja siinä mm. hotelli, ravintola ja kattoterassi.
Liiketilojen vuokraus ja tiedustelut: C&W Retail Services, puh. 010 836 8418, retail.fi@cushwake.com.
Katajanokan Laituri on kesällä 2024 valmistunut uudenaikainen toimitalo, joka sijaitsee keskeisellä paikalla Helsingin Katajanokalla meren rannalla. Merkittävään kulttuuriympäristöön sijoittuvaan kiinteistöön tulee myös julkisia tiloja, jolloin se palvelee myös merellisestä sijainnista nauttivia kaupunkilaisia ja matkailijoita. Näkyvät puupinnat sekä rakennuksen persoonallinen muotoilu toimivat vahvoina erottautumistekijöinä alueen muista kiinteistöistä. Kiinteistölle haetaan LEED Platinum -ympäristösertifikaattia.
