Vuokrataan toimistotilat - Helsinki
Tammasaarenkatu 1 NINA, 02920 Helsinki #10850474
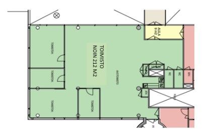
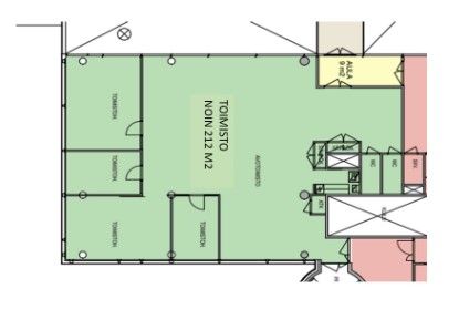
Vuokrattavana 3. kerroksen toimistotila, jossa 2 neuvotteluhuonetta, toimistohuone, avotoimistotilaa, minikeittiö ja 2 wc:tä. Ikkunoista näkymät pääosin Kaapelitehtaan suuntaan. Sisävalokuvat ovat esimerkkejä kiinteistön tiloista.
HTC Helsinki on merellisessä Ruoholahdessa sijaitseva Business Park, joka tarjoaa tasokkaat toimistotilat hyvien palveluiden ja kulkuyhteyksien äärellä lähellä Helsingin ydinkeskustaa. HTC Helsinki koostuu viidestä erillisestä rakennuksesta, jotka on nimetty löytöretkeilijöiden veneiden mukaan: Kolumbuksen Nina, Pinta ja Santa Maria sekä Nordenskiöldin Vega ja Heyerdahlin Kon-Tiki. HTC Helsingin rakennukset ovat valmistuneet vuosina 2001–2002. Kiinteistössä kaikki palvelut kuten ravintolat, kuntosalit, auditoriot jne. Koneellinen ilmanvaihto ja jäähdytys.
Autopaikkoja on HTC:n alla, tilavassa parkkihallissa. Maksullisia pysäköintipaikkoja on kiinteistön edessä sekä lähikaduilla.
