Vuokrataan toimistotilat - Helsinki
Kansakoulukatu 3, 00100 Helsinki #10850472
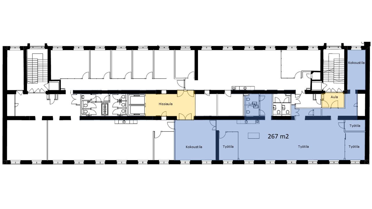
Vuokrattavana 3. kerroksen 267 m2 muuttovalmis toimistotila.
Arvokiinteistö hyvällä sijainnilla keskustassa Kampintorin äärellä ja Kampin kauppakeskuksen läheisyydessä. Kiinteistö sijaitsee Fredrikinkadun ja Kansakoulukadun kulmassa. Kampin halutuimmissa kortteleissa sijaitseva kiinteistö on varma valinta, kun etsit edustavia toimitiloja ydinkeskustasta. Tämä toimisto- ja liikekiinteistö on yksi Helsingin keskustan vetovoimaisista kohteista. Seitsenkerroksisen punatiilisen talon tilat ovat tyylikkäitä ja valoisia.
Erinomaiset julkiset yhteydet ja sujuva pysäköinti Forumin parkkihallissa, josta kuivin jaloin toimistolle. Kohteessa laaja kattaus käyttäjäpalveluita (aulapalvelu, neuvottelutilat, sosiaali- ja liikuntatilat, sekä vapun tienoilla myös laadukas ravintola). Lisäksi Kampin keskuksen lukuisat lounasmahdollisuudet ja monipuoliset palvelut vain kivenheiton päässä.
