Vuokrataan toimistotilat - Helsinki
Malminkatu 28, 00100 Helsinki #10850442
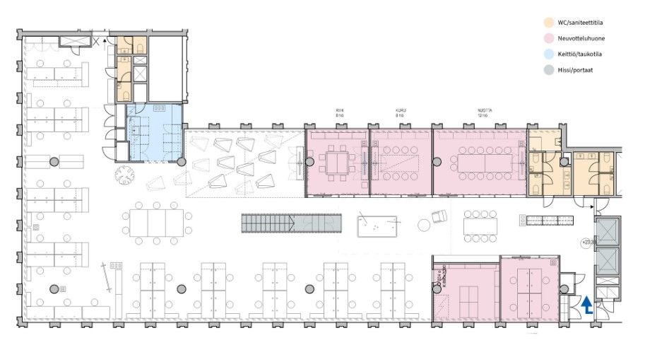
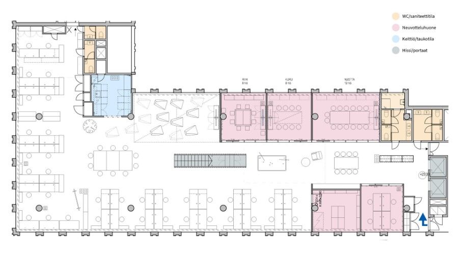
Vuokrattavana 3. kerroksen 525 m2 avotoimistotila katunäkymin. Valoisa ja monipuolinen toimistotila, jossa mahdollisuus useille neuvottelutiloille. Ikkunoita kolmeen suuntaan.
Malminkatu 28 on 70-luvun arkkitehtuuria edustava toimistokiinteistö hyvällä paikalla Helsingin Kampissa, metroaseman ja Kampin keskuksen tuntumassa. Talo pitää sisällään modernia ja valoisaa avotoimistotilaa, joiden muunneltavuuden ansiosta voimme tehdä tiloista yrityksenne näköiset ja parhaalla mahdollisella tavalla toimintaanne tukevat.
Osoite
Malminkatu 28, 00100 Helsinki
Tilatyyppi
Toimistotilaa
525 m2
Kulkuyhteydet
Hyvät liikenneyhteydet julkisilla. Bussi- ja metroyhteydet Kampin keskuksesta. Raitiovaunuyhteydet Mechelininkadulta. Helsingin rautatieasemalle 850 m.
Vapautuu
Kysy
Rakennusvuosi
1977
Ota yhteyttä
Pyydä lisätietoa
