Vuokrataan liiketilat - Helsinki
Kustinpolku 9, 00240 Helsinki #10850440
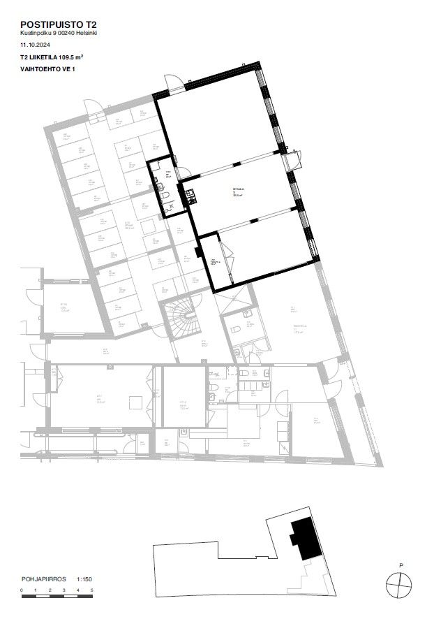
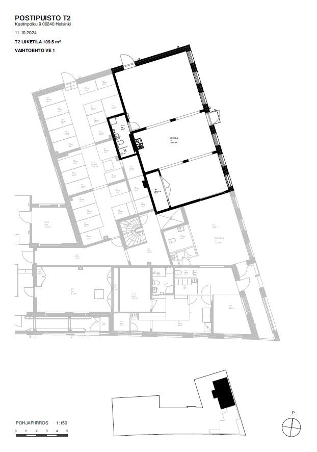
Vuokrattavana katutason 109 m2 liiketila asuinrakennuksen kivijalasta uudiskohteessa Helsingin Postipuistossa. Tila on mahdollista jakee puoliksi, jolloin tilan kooksi tulee n. 50 m2. Liiketila tarjoaa erinomaiset mahdollisuudet uudella ja kehittyvällä alueella, missä lähellä asuvien asukkaiden ja ohikulkijoiden määrä on jatkuvassa kasvussa. Kuvissa liiketilojen pohjakuva ja havainnekuva talosta.
Liiketilojen vuokraus ja tiedustelut: C&W Retail Services, puh. 0108368400, retail.fi@cushwake.com.
Uudiskohde Postipuistossa. Alueelta on erinomaiset liikenneyhteydet: Ilmalan juna-asema sekä sujuvat bussi- ja raitiovaunuyhteydet Helsingin keskustaan.
Osoite
Kustinpolku 9, 00240 Helsinki
Tilatyyppi
Liiketilaa
50 - 109 m2
Vapautuu
Kysy
Ota yhteyttä
Pyydä lisätietoa
