Vuokrataan toimistotilat - Helsinki
Tallberginkatu 2, 00180 Helsinki #10850431
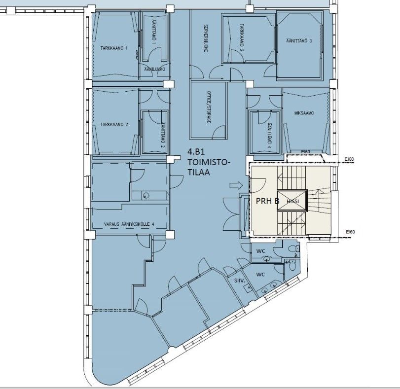
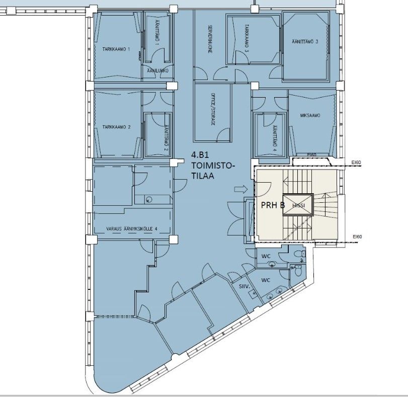
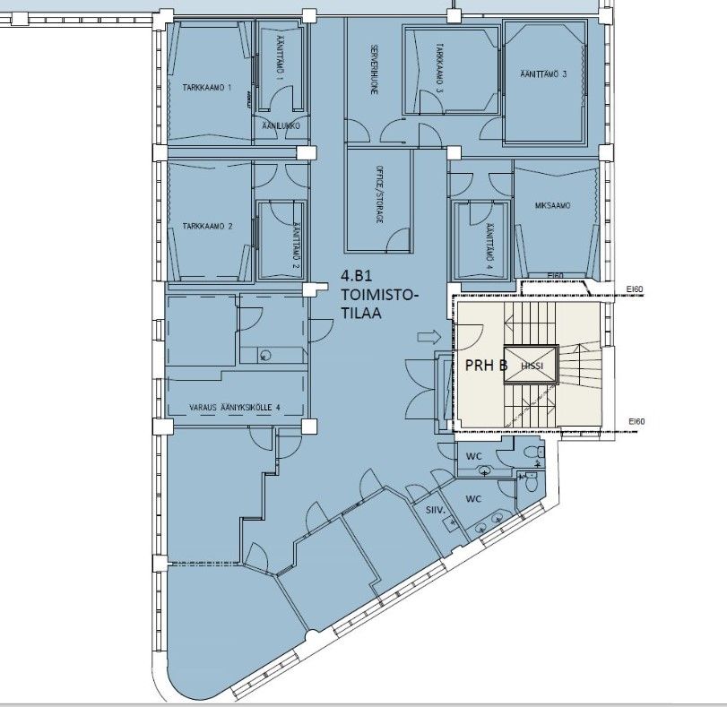
Vuokrattavana 4. kerroksen 280 m2 toimistotila. Toimiston aiemman käyttötarkoituksen mukaan soveltunut puheen äänitysstudiotoimintaan. Tila sijaitsee hissillisessä B-rapussa 4. kerroksessa. Sisävalokuvat ovat esimerkkejä kiinteistön tiloista.
Tallbergintalo kauniilla merellisellä sijainnilla Ruoholahdessa Kaapelitehtaan vieressä, Tallberginkadun ja Porkkalankadun risteyksessä erinomaisten kulkuyhteyksien varrella.
Tallbergintalo ja siihen yhdistetty Itämerentalo toimivat käsi kädessä. Niillä on yhteiset aulavastaanottopalvelut, neuvottelutilat, lounasravintola ja lastauslaituri sekä mahdollisuus kulkea sisäkautta talosta toiseen. Talon läheisyydessä on runsaasti paikoitustilaa.
Kauppakeskus Ruoholahti palveluineen ja ravintoloineen on viiden minuutin kävelyetäisyydellä.
